Не упусти свой шанс! Последние акции от застройщиков  ▼

Продается дом в д. Покровское, Заречная ул., 6

85 000 000 Р

Покровское д. (Истра гор. округ)

Заречная ул.6

Дата публикации: 3 ноября 2025

Дата обновления: 31 января 2026

Телефон: 
Показать телефон

+7 (909) 960-49-97

Агентство:  ГОРОБМЕН

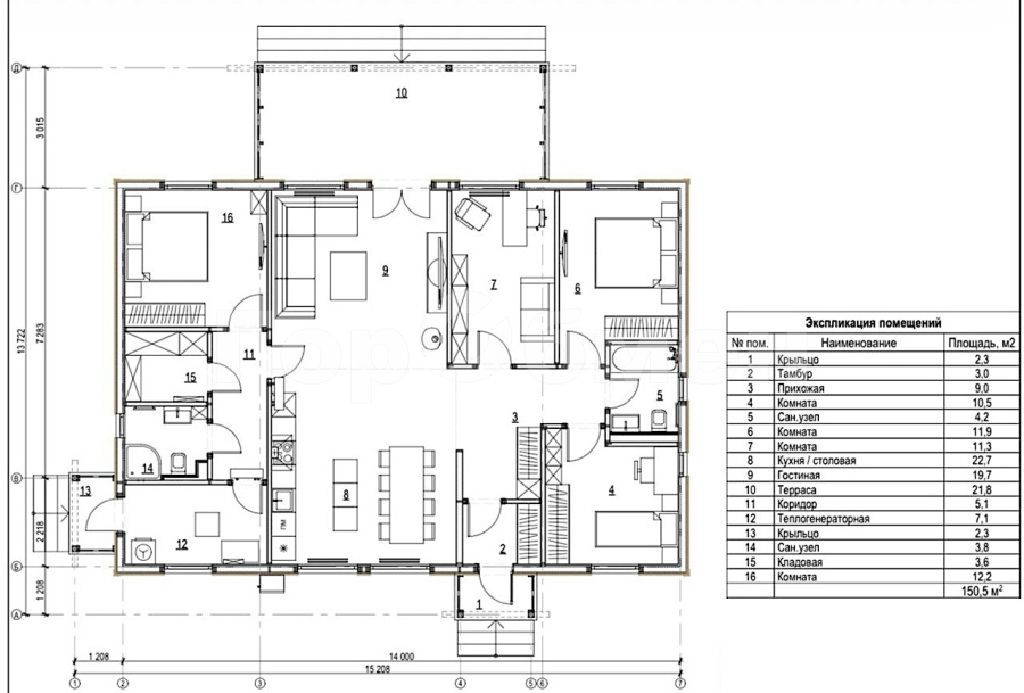
Площадь дома: 152 м2

Площадь участка: 30 сот.

ПМЖ: есть

Электричество: есть

Газ: есть

Отопление: есть

Водопровод: есть

Канализация: есть

Охрана: не указано

Статус сделки: продажа

Описание

Дом из клеёного бруса на участке ИЖС. Дом площадью 152 кв.м, одноэтажный (поэтажный план в фотографиях), готов к проживанию, оборудован кухней со всей необходимой бытовой техникой, меблирован. Коммуникации: газ магистральный в доме, вода центральная, электричество 30 кВт, септик. Участок тридцать соток, правильной формы, ровный, благоустроенный, полностью огорожен, откатные ворота, выполнен ландшафтный дизайн, установлена автоматическая система полива, кадастровый номер участка: 50:08:0000000:168888, есть возможность строительства на участке еще нескольких домов и хозяйственных построек. В населенном пункте налаженная система эксплуатации, небольшие общепоселковые и коммунальные платежи, подъездные дороги асфальтированы до самого участка, дороги зимой чистят, мусор вывозят. Поселок заселен, многие проживают круглогодично. Инфраструктура: детская площадка, река, зона отдыха, дети могут безопасно гулять в поселке самостоятельно, рядом в пешей доступности магазины, рестораны, фитнес и прочая инфраструктура. Удобная транспортная доступность, остановка школьного автобуса внутри поселка, ходит автобус, легкий выезд на Новорижское и платник М1. Документы: договор купли-продажи, полная стоимость в договоре, один взрослый собственник, свободная продажа, быстрый выход на сделку, подходит под ипотеку, показываем оперативно.

Дом на карте

ПанорамыКарта
Спецпредложения
Добавить объявление