Не упусти свой шанс! Последние акции от застройщиков  ▼

Продается дом в д. Александрово

160 000 000 Р

Александрово д. (Клин гор. округ)

Дата публикации: 24 июля 2025

Дата обновления: 20 декабря 2025

Телефон: 
Показать телефон

+7 (495) 104-55-69

Агентство:  ООО Метриум

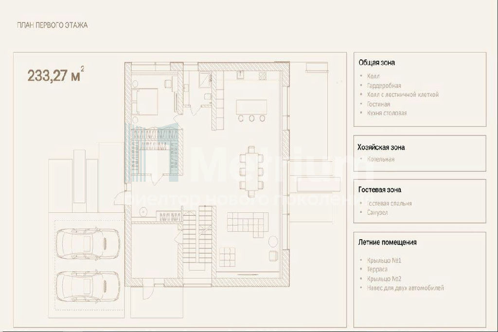
Площадь дома: 349,5 м2

Площадь участка: 11,4 сот.

ПМЖ: не указано

Электричество: не указано

Газ: не указано

Отопление: не указано

Водопровод: не указано

Канализация: не указано

Охрана: не указано

Статус сделки: продажа

Описание

ID 14405 В продаже дом Villa Harmonia 349,50 кв.м в КП Александрово в 32 км от МКАД по Новорижскому шоссе!
Дом предлагается с чистовой отделкой и мебелью, полностью готов для жизни. Выполнена лаконичная современная отделка, дом наполнен светом, благодаря панорамному остеклению. Напольное покрытие на первом этаже выполнили
из керамогранита. Для комфорта под него уложили систему теплого пола. Модульный диван бренда BoConcept и текстиль выбрали в более светлых песочно-бежевых оттенках. Планировкой предусмотрены просторная кухня-гостиная, 4 спальни и навес для 2х автомобилей.
Участок расположен в глубине посёлка, рядом с границей леса. В любое время года вы сможете любоваться высокими кронами сосен и елей. Посёлок полностью благоустроен, поэтому вас не потревожит шум чужой стройки и двигатели проезжающей техники. Приватность здесь тоже максимальна: по соседству с вами всего пара участков.

Дом на карте

ПанорамыКарта
Спецпредложения
Добавить объявление