Не упусти свой шанс! Последние акции от застройщиков  ▼

Продается 3-комнатная квартира, Каширское ш., 5К1

16 900 000 Р

Каширское ш.5К1

Дата публикации: 27 марта 2026

Дата обновления: 3 апреля 2026

Телефон: 
Показать телефон

+7 (499) 372-92-13

Агентство:  МИЭЛЬ

Этаж: 2 / 8

Общая: 68 м2

Жилая: 47 м2

Кухня: 8 м2

Комнаты: не указано

Балкон/лоджия: не указано

Лифт: есть лифт

Окна: окна на улицу

Санузел: раздельный

Мусоропровод: не указано

Состояние квартиры: требуется ремонт

Тип дома: кирпичный

Год постройки: 1959

Территория: огороженная

Парковка: не указано

Статус сделки: продажа

Сделка: прямая продажа

Собственность: не указано

Основание права собственности: не указано

Описание

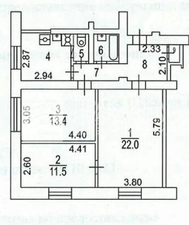
Код объекта: 2094275.Общее состояние: Квартира просторная, теплая, солнечная, но требует ремонта. Идеальная возможность создать интерьер по своему вкусу без необходимости переделки чужого ремонта.Окна выходят на запад, северо-запад.Планировка: Две изолированные комнаты, одна проходная, кухня 8 кв.м, квартира без мебели. Санузел раздельный. Окна пластиковые.Дом: 8-этажный кирпичный дом 1959 г.п. Адекватные, хорошие соседи, есть чат дома для решения всех проблем. Подъезд оборудован пандусом для подъема колясок. На этаже в кармане 3 квартиры.Двор: Тихий, озеленённый двор с детскими и спортивными площадками.Парковка: Есть внутридворовая парковка (всегда есть куда поставить машину).Транспортная доступность: До м. Нагатинская 5 минут на автобусе, до м. Каширская минут 7 на автобусе. Автобусная остановка в 2 минутах пешком. Удобный выезд на ТТК, Варшавское шоссе, рядом Нагатинская набережная.Инфраструктура рядом: ТРК Гудзон, фитнес-центры и много детских кружков и спортивных секций, поликлиники, МФЦ.Образование: В шаговой доступности школа 504, несколько детских садов, Клубы единоборств, секции гимнастики Гимнастики, футбольные клубы, университетТорговля: Рядом строительный рынок Каширский двор. Все сетевые магазины в шаговой доступностиОтдых: Шикарный район. В районе есть парк "Жужа" в пешей доступности со спортивными площадками, зонами для барбекю, музей-заповедник Коломенское, где можно провести время на выходных всей семьей.Объект идеален для сдачи в аренду после ремонта. Локация у остановки транспорта гарантирует высокий спрос и быструю окупаемость.Условия продажи: свободная продажа, двое взрослых собственников.Обременения в виде ипотекиРаботать с МИЭЛЬ выгодно и надёжно:Правовая экспертиза: Проверим историю объекта и гарантируем чистоту сделки.Ипотека на "вторичку": Поможем получить одобрение по выгодной ставке, в том числе под будущий ремонт.Инвестиционный расчёт: Покажем потенциальную доходность от аренды после ремонта.Сопровождение сделки: Организуем безопасный расчёт и регистрацию.Записывайтесь на просмотр, чтобы лично оценить все преимущества этой квартиры. Ждем вас!

Квартира на карте

ПанорамыКарта

Похожие объявления

Этаж: 6  Площадь: 80,8 м2

21 500 000 Р

Этаж: 4  Площадь: 81,5 м2

30 500 000 Р

Этаж: 5  Площадь: 101 м2

30 500 000 Р

Этаж: 9  Площадь: 59,1 м2

18 300 000 Р

Этаж: 7  Площадь: 62 м2

25 800 000 Р
Спецпредложения
Добавить объявление