Не упусти свой шанс! Последние акции от застройщиков  ▼

Продается 3-комнатная квартира, д., 31а

12 500 000 Р

Андреевка пгт (Солнечногорск гор. округ)

Дата публикации: 14 апреля 2026

Дата обновления: 16 апреля 2026

Телефон: 
Показать телефон

+7 (926) 417-82-82

Агентство:  ЗелЖилСервис

Этаж: 18 / 19

Общая: 75 м2

Жилая: 40,5 м2

Кухня: 12 м2

Комнаты: не указано

Балкон/лоджия: не указано

Лифт: не указано

Окна: не указано

Санузел: не указано

Мусоропровод: не указано

Состояние квартиры: не указано

Тип дома: панельный

Год постройки: 2011

Территория: не указано

Парковка: не указано

Статус сделки: продажа

Сделка: прямая продажа

Собственность: не указано

Основание права собственности: не указано

Описание

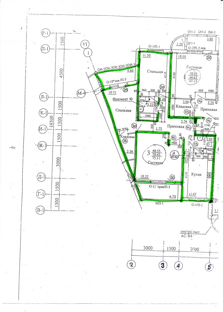
Трехкомнатная квартира с гардеробной в 5 мин от г. Зеленоград
Продается трехкомнатная квартира в поселке Андреевка на 18 этаже 19-этажного дома, в шаговой доступности от г. Зеленоград с его сформированной транспортной и социальной инфраструктурой.
Параметры:
· Общая площадь: 75 м², жилая 40.5 кв.м.
· Этаж: 18/19
· Кухня 12 м², гостиная 18 м² с выходом на балкон, спальня 12м², спальня 10.7 кв.м. с гардеробной 2.5 м²
· С/у: раздельный (два)
· Балкон: 2 балкона застеклены
В шаговой доступности: наземная и платная парковки, детская и спортивная площадки, детские сады и школы.
Инфраструктура: магазины «Ярче», "Дикси", "Винлаб", "Верный", аптеки и пункты выдачи маркетплейсов, салоны красоты, ветклиника, поликлиника, сбербанк, фитнес-клуб.
Транспортная доступность: 5 мин пешком до автобусной остановки, 17 мин. на автобусе до МЦД-3 Зеленоград-Крюково
Условия приобретения:
Свободная продажа. Один взрослый собственник.
Квартира ждет своего владельца!

Квартира на карте

ПанорамыКарта
Спецпредложения
Добавить объявление