Не упусти свой шанс! Последние акции от застройщиков  ▼

Продается дом в СНТ Быково

24 400 000 Р

Быково СНТ (Подольск гор. округ)

Дата публикации: 2 августа 2025

Дата обновления: 31 января 2026

Телефон: 
Показать телефон

+7 (910) 474-16-88

Агентство:  ГОРОБМЕН

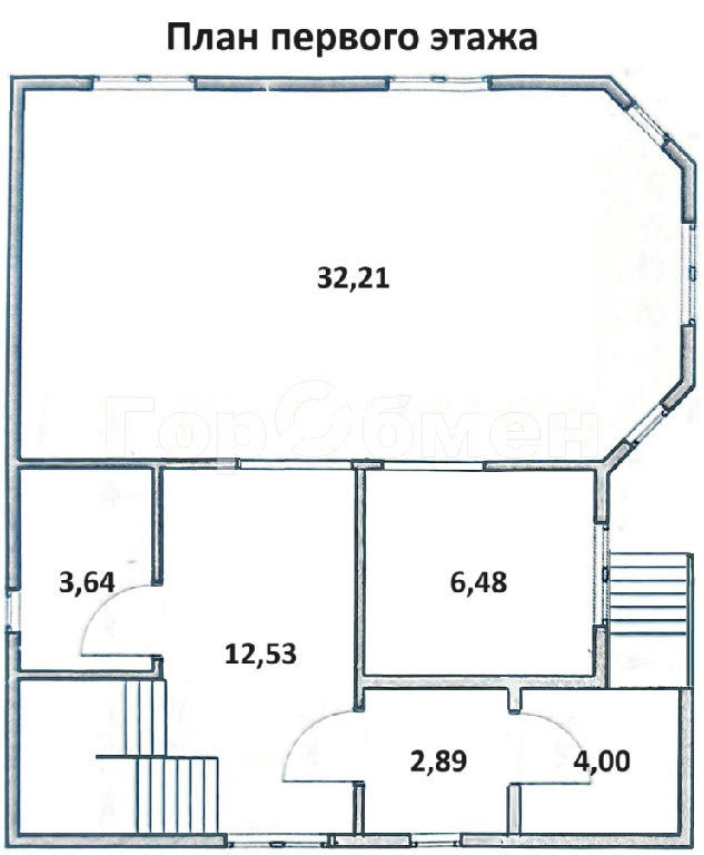
Площадь дома: 211 м2

Площадь участка: 10 сот.

ПМЖ: есть

Электричество: есть

Газ: не указано

Отопление: есть

Водопровод: есть

Канализация: есть

Охрана: не указано

Статус сделки: продажа

Описание

Продам готовый для комфортного круглогодичного проживания имущественный комплекс общей площадью 211 кв.м с качественным ремонтом на земельном участке 10 соток. Всё делали для себя! Комплекс включает основной деревянный каркасный жилой дом с гаражом 146 кв.м и гостевой жилой дом 65 кв.м. Дополнительно оборудован мангальный комплекс и сделаны закладные коммуникации для оборудования бани с бассейном. Выполнено ландшафтное благоустройство и озеленение территории, мощение и качественное освещение. Пять спален, четыре санузла с душевыми кабинами, три кондиционера. Устроена система умный дом, охрана и видеонаблюдение. Своя скважина с чистейшей водой, септик, электричество 30 кВт (трехфазное), все коммуникации заведены в дом. Участок сухой, весной вода не застаивается. Для ухода за территорией есть весь необходимый инвентарь. Соседи замечательные люди, приветливые и отзывчивые, все живут круглогодично. Рядом инфраструктура поселка Быково: школа, магазины, красивый дом культуры. Всего 500 метров до реки Пахра. Отличная транспортная доступность: 6 км до МЦД Остафьево, 13км до МКАД по Варшавскому шоссе. Дороги зимой чистят хорошо. Один собственник. Собственность более 5 лет. Быстрый выход на сделку. Идеальное предложение для сочетания загородной жизни и деловой суеты. Оперативный показ!

Дом на карте

ПанорамыКарта
Спецпредложения
Добавить объявление