Не упусти свой шанс! Последние акции от застройщиков  ▼

Продается коттедж в д. Манушкино, Ступинская ул., 1

6 000 000 Р

Манушкино д. (Чехов гор. округ)

Ступинская ул.1

Дата публикации: 16 сентября 2024

Дата обновления: 9 августа 2025

Телефон: 
Показать телефон

+7 (977) 452-25-85

+7 (915) 392-79-04

Агентство:  Информационное агентство horomy.info

Площадь дома: 120 м2

Площадь участка: 7 сот.

ПМЖ: есть

Электричество: есть

Газ: по границе

Отопление: есть

Водопровод: скважина

Канализация: септик

Охрана: не указано

Статус сделки: продажа

Описание

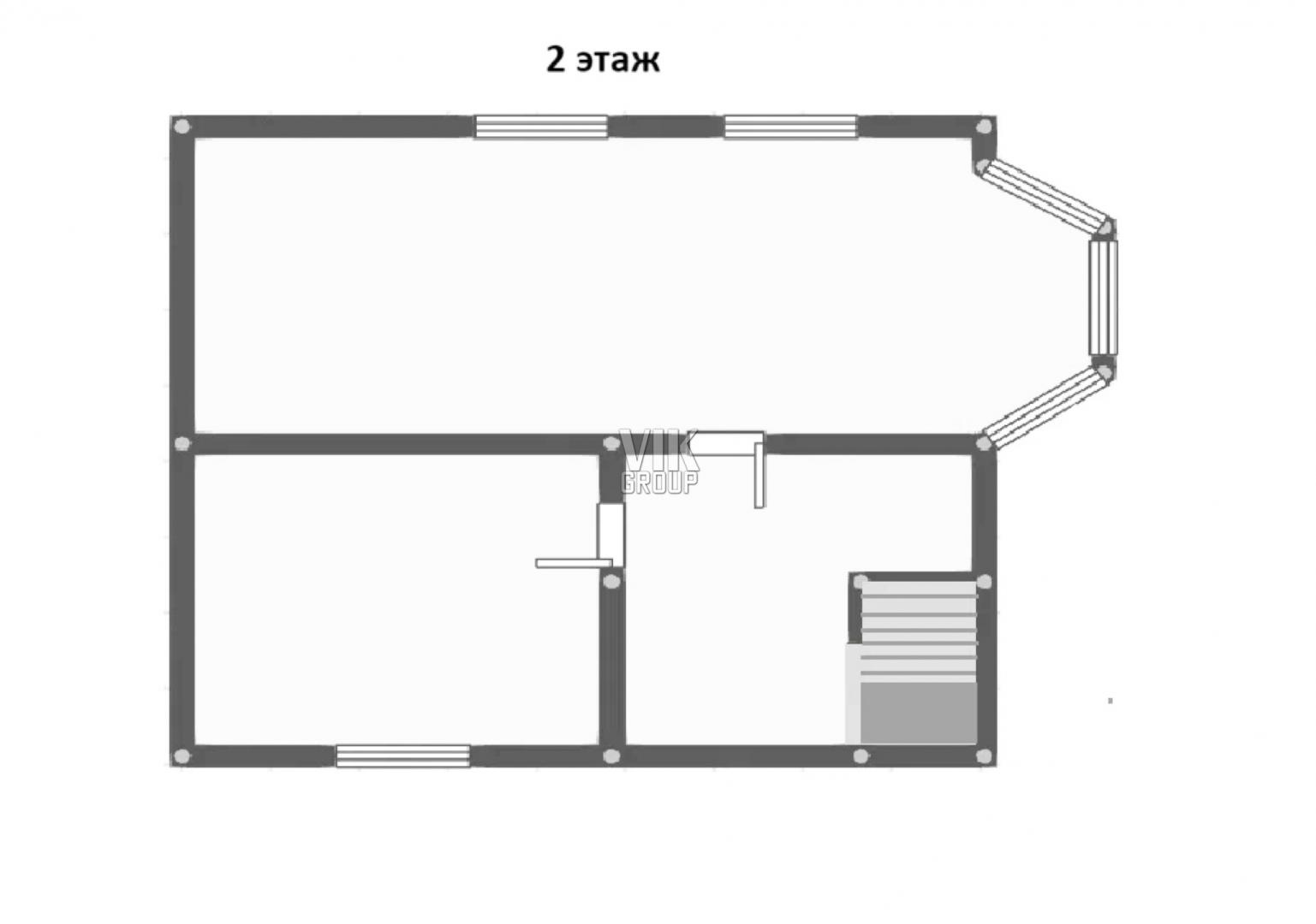
Продается отличный двухэтажный жилой коттедж в деревне Манушкино по ул Ступинская дом 1 Чеховского района Московской обл. Дом построен в 2015г по каркасно – щитовой технологии. Удобная и функциональная планировка, общей площадью с учетом холодных помещений 120м². На первом этаже расположены: просторная терраса, комната 12м², просторная кухня - гостиная 20м² с эркером, совмещенный санузел с душевой кабиной. На втором этаже изолированные спальни: 10-20м². Высота потолка до 2,9м. Дом построен из качественных строительных эко материалов: на окнах установлены стеклопакеты с рулонными жалюзи, функциональная лестница из дерева с резными балясинами, полы в комнатах, в санузле и на кухне- линолеум, стены обшиты вагонкой и обработаны антиаллергенной пропиткой и лаком, стены в санузле отделаны пластиковыми панелями, входная железная дверь. Кровля-металлочерепица. Все коммуникации заведены в дом: электричество, скважина, канализация – септик, газ проходит по границе участка, возможно подключение по гос программе. Кадастровый номер 50:31:0050444:295. Дом расположен на ровном участке 7соток, по периметру огорожен двухметровым металлическим забором, двое ворот с выездом на две улицы. К дому примыкает хозблок. Категория: земли населенных пунктов, использование: для ведения личного подсобного хозяйства. Кадастровый номер 50:31:0050444:286. В деревне развита инфраструктура: школа и д/сад, магазины, строительный торговый центр. Дороги асфальтированы. Деревня окружена лесным массивом, рядом карьер с зонами отдыха. Отличное транспортное сообщение до г Чехов 2 км, регулярные автобусные рейсы. От МКАД 50км по Симферопольскому шоссе или по трассе М2(Крым). Предоставляем льготную ипотеку.

Коттедж на карте

ПанорамыКарта
Спецпредложения
Добавить объявление