Не упусти свой шанс! Последние акции от застройщиков  ▼

Продается дом в с. Загорново, Молодежная ул., 37

18 900 000 Р

Загорново с. (Раменский гор. округ)

Молодежная ул.37

Дата публикации: 2 апреля 2026

Дата обновления: 8 апреля 2026

Телефон: 
Показать телефон

+7 (499) 213-37-67

Агентство:  Кредит-Центр

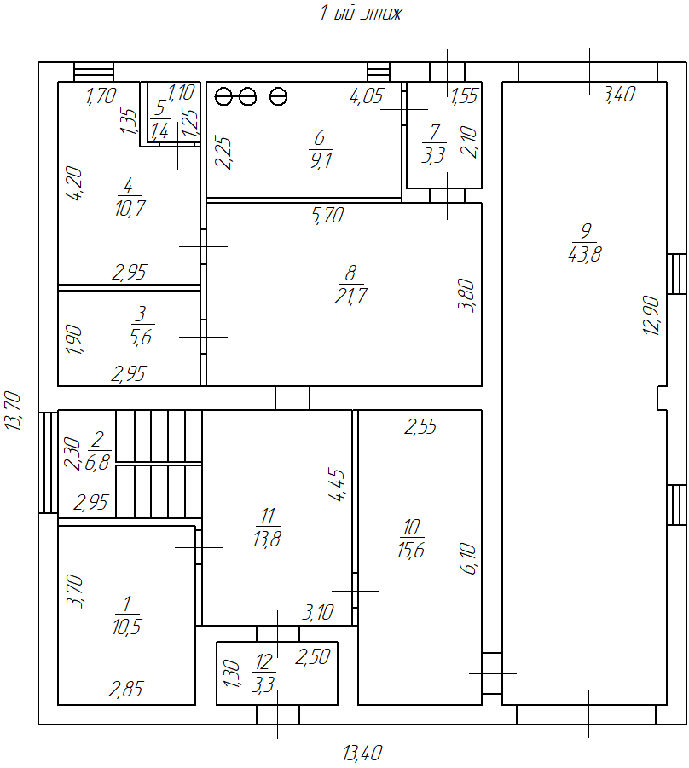
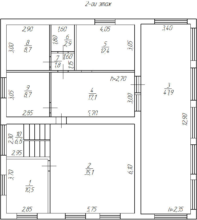
Площадь дома: 393 м2

Площадь участка: 15 сот.

ПМЖ: не указано

Электричество: есть

Газ: есть

Отопление: есть

Водопровод: есть

Канализация: есть

Охрана: не указано

Статус сделки: продажа

Описание

Арт. 133583711 Не дом а крепость! Крепкий кирпич, 15 соток земли, газ, 30 кВт света, свой гараж и асфальт у порога. Это не просто дом - это готовый фундамент вашей жизни, где осталось сделать только то, что приятно: ремонт для себя. Представьте: вы заезжаете на участок, где уже всё продумано. Не нужно годами ждать усадку, воевать с подрядчиками, врезаться в газ или тянуть столбы. Здесь уже есть место для машин, гараж на два автомобиля, мастерская, теплица, место для отдыха, большая территория для детских игр и шумных семейных ужинов. Что внутри: Три этажа, 284 м2 полезной площади, 16 отдельных помещений (без учёта коридоров и холлов): четыре спальни, большая гостиная, кухня, огромная лоджия 43,9 м2 (тёплая, светлая, место для хобби всей семьи), кабинет, прачечная, гладильная с окном, прихожая, гардеробные, санузлы, бойлерная, мастерская и просторный гараж на две машины. Каждый найдёт своё пространство. --- А теперь вы просто выбираете: Купить этот дом за 18 900 000 и сделать ремонт так, как давно мечтали. Всё остальное уже есть: дом, участок, газ, мощное электричество, гараж, хозблок, теплица, асфальт. Или купить участок 6 соток тут же, в Загорново, за 3 - 4 млн , потом за 8 - 12 млн построить коробку, потом ещё пару лет возиться с коммуникациями и въездом. Или купить студию 29 м2 в Раменском за 6 млн и жить в тесноте, слушая соседей за стенкой. Решать вам. Выбрав этот дом, вы точно не пожалеете: здесь вы получаете пространство для жизни, а не просто квадратные метры. --- Звоните, жду вас по адресу: Раменский р-н, с. Загорново, ул. Молодёжная 37 Покажу в удобное время. Внутри жилое состояние, но лучше сделать всё по-своему. Внёсен аванс до 27 апреля.

Дом на карте

ПанорамыКарта
Спецпредложения
Добавить объявление