Не упусти свой шанс! Последние акции от застройщиков  ▼

Продается дом в КП Ольховка Кантри Клаб, д., 50

14 650 000 Р

Ольховка Кантри Клаб КП (Раменский гор. округ)

Дата публикации: 21 февраля 2026

Дата обновления: 3 марта 2026

Телефон: 
Показать телефон

+7 (499) 372-92-13

Агентство:  МИЭЛЬ

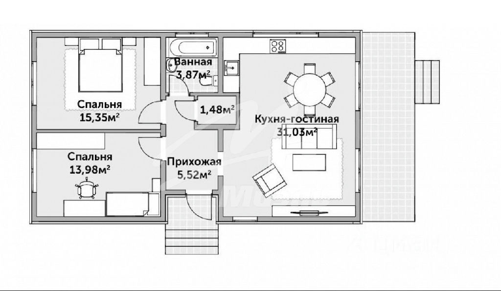
Площадь дома: 75 м2

Площадь участка: 9 сот.

ПМЖ: есть

Электричество: есть

Газ: есть

Отопление: есть

Водопровод: есть

Канализация: есть

Охрана: не указано

Статус сделки: продажа

Описание

Арт. 131652435
РЕАЛЬНЫЕ ФОТО ДИЗАЙНА И МЕБЕЛИ ЭТОГО ДОМА!!! Предлагается к продаже стильный коттедж в благоустроенном коттеджном поселке "Ольховка Кантри Клаб". Отличная альтернатива евро-трёхкомнатной квартиры в живописном месте ближнего Подмосковья! До метро Жулебино, Котельники и Лермонтовский проспект 20 минут езды на машине или автобусе по трассе М-5 Урал! Дом 75м2 + 9 соток земли, участок выровнен, правильной формы, огорожен забором в общем стиле современного поселка Ольховка Кантри Клаб, установлена калитка и ворота с заездом на уложенное брусчаткой машиноместо! Дизайнерский фасад в современном стиле выполнен из премиальных материалов! Полная автономия коммуникаций на участке: автоматическая станция септик, полностью оборудованная скважина 54 метра, вода отличная! Установлен мощный электрокотел с возможностью замены на газовый(газ по границе участка), дом очень теплый, энергоэффективный, подогреваемый пол + батареи (с раздельной независимой от пола регулировкой температуры) в каждой комнате из расчета квадратуры помещения! Полностью оборудованная котельная, собрана идеально! В дом заведен интернет! Отделка выполнена из дорогостоящих материалов, в нынешних реалиях ремонт такого уровня стоит как ещё один дом!!! Очень удобная планировка (см фото), две изолированные светлые спальни с окнами в пол!!! Просторная гостиная так же с тремя окнами в пол и окном в зоне готовки, с установленной кухней и всей необходимой встроенной техникой (холодильник, духовой шкаф, варочная панель, вытяжка, микроволновка, стиральная и посудомоечная машины) мягкая мебель из велюра высшей категории, внутри ортопедических матрасов самый дорогостоящий из возможных ппу для повседневного сна! Вся корпусная мебель делалась на заказ, в каждой комнате огромное количество мест хранения, максимально рационально освоен буквально каждый сантиметр дома для удобства проживания новых хозяев! Чистейший воздух и вода, в двадцати минутах езды от города в современном поселке с полной инфраструктурой и приличной публикой! Школы, детские сады, поликлиника, магазины, полноценный оборудованный раздевалками песчаный пляж в десяти минутах ходьбы, детские и спортивные площадки, каток, круглосуточная охрана и многое другое! Выгодное приобретение в качестве ПМЖ-заезжай и живи или в качестве инвестиции так как после открытия трассы, ожидается подорожание всей недвижимости в данном направлении на 15-25%. Подходит под семейную ипотеку! Звоните, приезжайте, мы полностью готовы к сделке! До встречи на просмотре!

Дом на карте

ПанорамыКарта
Спецпредложения
Добавить объявление