Не упусти свой шанс! Последние акции от застройщиков  ▼

Продается дом в д. Вишняково, Центральная ул., 37Б

12 800 000 Р

Вишняково д. (Богородский гор. округ)

Центральная ул.37Б

Дата публикации: 8 апреля 2026

Дата обновления: 20 апреля 2026

Телефон: 
Показать телефон

+7 (499) 372-92-13

Агентство:  МИЭЛЬ

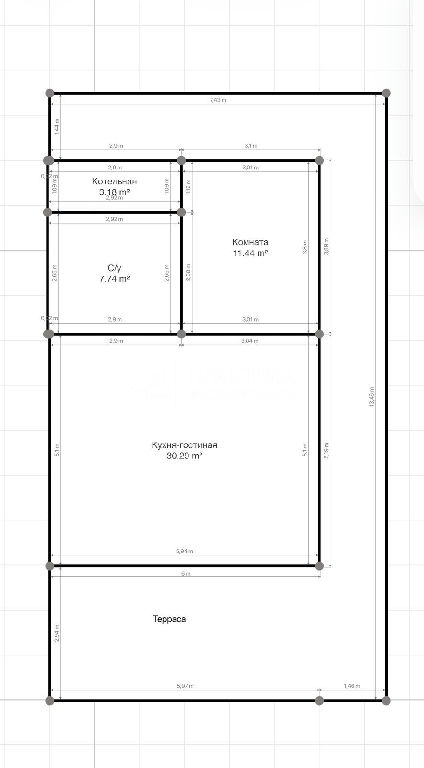
Площадь дома: 90 м2

Площадь участка: 16 сот.

ПМЖ: не указано

Электричество: есть

Газ: не указано

Отопление: есть

Водопровод: есть

Канализация: есть

Охрана: не указано

Статус сделки: продажа

Описание

Код объекта: 2118054.Продается уникальный двухэтажный дом площадью 90 кв.м. на обширном земельном участке 16 соток, расположенный в благоустроенном районе с индивидуальным жилищным строительством (ИЖС). В доме 2 спальни, котельная, совмещенный санузел и кухня-гостинная 27 кв.м. Дом каркасный с утеплителем 200 мм. на надежном свайно-винтовом фундаменте, что обеспечивает долговечность и устойчивость. Дом Афрейм 6 на 10 м. с аттиковой стеной площадью 90 м2. Терраса 3 м. Пятно застройки 7,5м х 14,5м. В доме установлены энергосберегающие панорамные двухкамерные окна с затемнением. Дом из сухих материалов, утеплитель 200, паро-гидроизолирован. Кровля 5 мм. Установлен теплый пол по всему дому, артезианская скважина с системой очистки воды, бойлер с горячей водой на 100 литров, интернет-оптоволокно. Внутри вы найдете все необходимые коммуникации: центральное водоснабжение, газ и электричество мощностью 15 кВт. Дом полностью мебелирован. Вся остается новому собственнику. Установлен кондиционер и проектор с экраном для просмотра фильмов. Дом полностью готов для круглогодичного проживания.Участок выровнен и засеян газонной травой. На территории сделаны деревянные дорожки, зона барбекю, есть большой сибирский чан. Раздвижные ворота. Своя парковка на 6 машиномест. Участок огорожен забором со всех сторон. Одним из главных преимуществ данного предложения является его расположение. ТРАНСПОРТНАЯ ДОСТУПНОСТЬ: В шаговой доступности находится железнодорожная станция, что позволит вам быстро добраться до города. Имеется выезд на трассу М-12. До Москвы ехать 15 минут транспортом. ИНФРАСТРУКТУРА: В окрестностях развитая инфраструктура: магазины, школы и медицинские учреждения находятся всего в нескольких минутах езды. Для любителей природы рядом протекает живописная река с прекрасными местами для купания и отдыха, а также находится лесной массив, который станет идеальным местом для прогулок и пикников. Рядом находится карьер. Реальному покупателю предусмотрен торг, что позволит вам сделать выгодное приобретение. Мы также предоставляем помощь в одобрении ипотеки. Не упустите шанс стать владельцем этого замечательного дома! Звоните прямо сейчас, чтобы узнать больше и записаться на просмотр! ЮРИДИЧЕСКАЯ ЧИСТОТА: Один собственник. Свободная продажа. Быстрый выход на сделку. Прописка Московская область. возможна ипотека с особыми условиями для клиентов МИЭЛЬ от банков-партнёров, работаем с любыми источниками финансирования (материнский капитал, военный сертификат и т.д.) бонусы по партнёрским программам МИЭЛЬ на товары и услуги от известных брендов.

Дом на карте

ПанорамыКарта
Спецпредложения
Добавить объявление