Не упусти свой шанс! Последние акции от застройщиков  ▼

Продается дом в д. Шелковка

28 200 000 Р

Шелковка д. (Рузский гор. округ)

Дата публикации: 18 марта 2026

Дата обновления: 18 марта 2026

Телефон: 
Показать телефон

+7 (499) 372-92-13

Агентство:  МИЭЛЬ

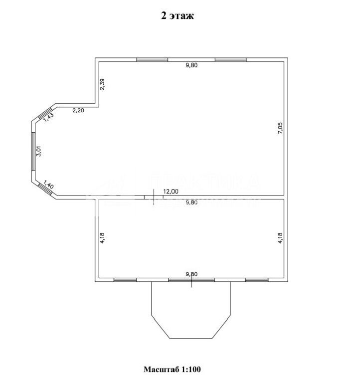
Площадь дома: 344,6 м2

Площадь участка: 9,3 сот.

ПМЖ: не указано

Электричество: есть

Газ: по границе

Отопление: не указано

Водопровод: есть

Канализация: есть

Охрана: не указано

Статус сделки: продажа

Описание

Код объекта: 2080642.Мечтаете о жизни в уютной деревне с хорошей транспортной доступностью?Ищете просторный дом для большой семьи?Хотите сделать ремонт на свой вкус? Наш дом в деревне на границе Одинцовского и Рузского района для вас! О ДОМЕ:*Дом построен из газобетонных блоков, отличается надёжной конструкцией и отличными теплоизоляционными характеристиками.*Подходит для круглогодичного проживания в умиротворенной атмосфере комфортной загородной жизни.*Состояние - под отделку, что позволяет реализовать собственный дизайн-проект и создать интерьер полностью под себя, без переплаты за чужие решения.*Функциональная площадь дома даёт возможность организовать:-просторную кухню-гостиную-несколько спален-кабинет, гардеробные-зоны отдыха для всей семьи. ОБ УЧАСТКЕ:*Участок расположен на второй линии от шоссе, что исключает пыль и шум от проезжающего автотранспорта, а также транзитное движение.*Участок ровный и огороженный. Имеются временные распашные ворота для удобства подвоза стройматериалов и парковки автомобиля.*Внутренний двор отсыпан галькой, что и практично, и эстетично и позволяет разместить зону отдыха не откладывая!*На участке высажены взрослые деревья (сосны, ели, декоративные кустарники).*Возведено отдельно стоящее двухэтажное строение свободного назначения (дом для персонала, баня). КОММУНИКАЦИИ:*Электричество - 15 кВт, разведено в доме.*Канализация - септик, разведено в доме.*Водоснабжение - колодец .*Газ по границе участка, возможно подключение по программе газификации. ИНФРАСТРУКТУРА, ТРАНСПОРТНАЯ ДОСТУПНОСТЬ:*Сетевые магазины в ближайшем населенном пункте Дорохово (ВкусВилл, Лента, Пятерочка, Дикси, Магнит). Имеется доставка продуктов, поликлиника ветцентр.*Выезд на Можайское шоссе, Минское шоссе. Альтернативный транспорт - электричка от ст. Дорохово, пешком 15 минут. О СДЕЛКЕ:*1 взрослый собственник, без обременения. Документы проверены и готовы для быстрой продажи.*С нами удобно и надежно!*Приглашаем на просмотр до наступления активного сезона!

Дом на карте

ПанорамыКарта
Спецпредложения
Добавить объявление