Не упусти свой шанс! Последние акции от застройщиков  ▼

Продается дом в КП Никольское-Лесное

9 500 000 Р

Никольское-Лесное КП (Солнечногорск гор. округ)

Дата публикации: 4 декабря 2024

Дата обновления: 22 октября 2025

Телефон: 
Показать телефон

+7 (968) 709-36-22

Площадь дома: 111,3 м2

Площадь участка: 8 сот.

ПМЖ: есть

Электричество: есть

Газ: есть

Отопление: есть

Водопровод: есть

Канализация: не указано

Охрана: есть

Статус сделки: продажа

Описание

Id 6724.Новый дом для круглогодичного проживания в живописном месте Подмосковья площадью 111.3 м2. Возможна прописка!!! Магистральный газ по границе участка!!!

Коттеджный посёлок Никольское Лесное возведён неподалёку от шоссе Георгиевское, Кутузовское, Ленинградское, Льяловское, Пятницкое, Фирсановское, Шереметьевское. Это даёт возможность без проблем доехать в центр города на авто. Сюда часто ходит и общественный транспорт. Посёлок находится на территории с великолепным природным рельефом, и прекрасной экологией. Он будет интересен в качестве дачи или постоянного места для жизни. Для приятной жизни есть все необходимое, недалеко созданы объекты инфраструктуры. Площадь посёлка имеет ограждение, что увеличивает уровень безопасности жизни для вас и ваших родных.

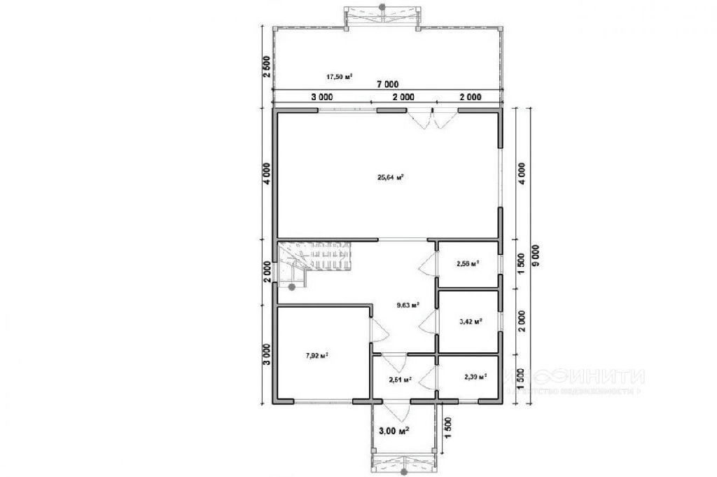
На участке площадью 8 соток, в окружении вековых деревьев в 2022 году возведён дом площадью 111 м2 (9м * 7 м) с шикарной верандой 17,5 м2.
Дом полностью оборудован и готов к круглогодичному проживанию, всё необходимое для этого имеется. Коммуникации : переливной септик, скважина с утеплённым входом водопровода в дом, электричество мощностью 15КВт. Кроме того, в посёлке проведена газификация и Вам необходимо будет только оформить индивидуальный ввод в дом по программе газификации Московской области. Подключена охранная сигнализация, проведён интернет и кабельное телевидение.

Дом обогревается электрическим котлом на 12кВт, который прекрасно обогревает дом, выполненный из бруса. Посёлок газифицирован - газ по границе!!!!

Что очень важно - дом очень ухожен, содержится в чистоте при максимальной заботе.

На первом этаже расположены: спальня 8 м2, техническая комната, санузел, кладовая, кухня-гостиная 25,6 м2 с выходом на видовую террасу площадью 17,5 м2 (в общую площадь дома не включена). Кухня полностью оборудована техникой (плита с духовкой, вытяжка, посудомоечная машина, фильтр для питьевой воды, в раковине встроен измельчитель для пищевых отходов). В гостиной зоне установлена красивая чугунная печка, которая помимо дополнительного источника тепла, станет местом приятного времяпровождения Вашей семьи. Терраса с видом на вековой лес, закрыта мягкими окнами, что даёт возможность наслаждаться на ней отдыхом не только в летнее время.

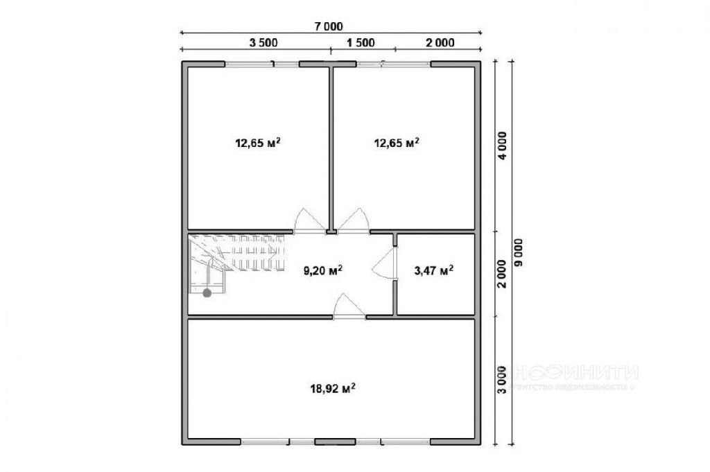
С первого этажа на второй ведёт комфортная лестница. На втором этаже расположились три спальни площадью: 12,65 м2 , 12,65 м2 и 18,92 м2, а также санузел. Из окон открывается прекрасный вид на лес и посёлок, слышен только шорох леса и пение птиц.

Участок ландшафтно расположен на возвышенности, что позволяет любоваться красивыми закатами круглый год. На участке сделали планировку, провели дренаж и оборудовали место под парковку на два автомобиля. Участок огорожен капитальным забором с трёх сторон, четвертую сторону планировалось оформить в виде живой изгороди.

Посёлок достроен, имеется въездная группа со шлагбаумом, детская площадка, асфальтированные дороги внутри посёлка.
В шаговой доступности лес для прогулок с тропинками и лыжней, а также речка с местом для купания.

Транспортная доступность: Ленинградское шоссе и трасса М-11, ЦКАД, позволяющие комфортно и быстро добраться в Москву и обратно.

В данный момент собственник проживает в доме круглогодично. Причина продажи - переезд.

Торг возможен!!!

Номер объекта: #6/537184/23361

Дом на карте

ПанорамыКарта
Спецпредложения
Добавить объявление