Не упусти свой шанс! Последние акции от застройщиков  ▼

Продается дом в д. Белеутово, Советская ул., 22А

58 000 000 Р

Белеутово д. (Ленинский гор. округ)

Советская ул.22А

Дата публикации: 22 января 2026

Дата обновления: 30 апреля 2026

Телефон: 
Показать телефон

+7 (926) 853-00-62

Агентство:  ГОРОБМЕН

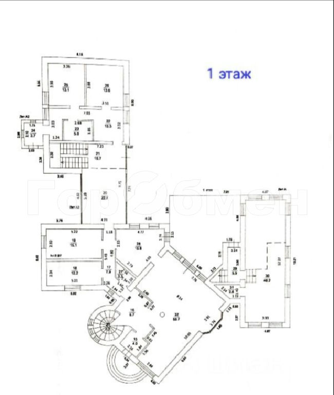
Площадь дома: 580 м2

Площадь участка: 25 сот.

ПМЖ: есть

Электричество: есть

Газ: есть

Отопление: есть

Водопровод: есть

Канализация: есть

Охрана: не указано

Статус сделки: продажа

Описание

Продам загородный дом в 13 км от МКАД по Каширскому шоссе. Дом площадью 580 кв.м на участке 25 соток. Расположен прямо на берегу реки Пахры в деревне Белеутово. Дом построен по индивидуальному проекту в три уровня с зимним садом и бассейном для круглогодичного отдыха. Высокие потолки, много окон с естественным светом, на 2-м этаже балконы. Столовая с камином, 2 кухни, 10 спален, кабинет-библиотека, 5с/у, 3 ванные комнаты, 5 выходов из дома в сад.
На первом этаже расположены: холл, столовая с камином, 2 кухни, кабинет-библиотека, 4 спальни, зимний сад, 2 с/у. На втором этаже - 6 спален, 2 ванные комнаты. В цокольном этаже - бассейн, зона отдыха, спортивные зоны, кладовые, постирочные, гардеробные, бойлерная.

Рядом с основным зданием разместили: гараж на несколько машин, помещение для охраны, отдельностоящий дом для отдыха с отоплением и мангалом для барбекю, птичники, вольеры для собак, подсобные помещения. На участке сделан ландшафтный дизайн с продуманной планировкой. Много плодовых и декоративных кустарников и деревьев, вы сможете наслаждаться свежими ягодами и фруктами весь сезон. По периметру участок огражден кирпичным забором, ворота автоматические.

До МКАД 20 мин, транспортом, до м. Домодедовская, Зябликово, Царицыно - 30 мин.транспортом. В 2 км от дома находится ж/д станция Ленинская Павелецкого направления, до м. Варшавская электричка идет 25 минут. Этот дом - отличное сочетание комфорта и практичности, вариант для тех, кто ищет атмосферу загородной жизни и хочет жить на природе.

Дом на карте

ПанорамыКарта
Спецпредложения
Добавить объявление