Не упусти свой шанс! Последние акции от застройщиков  ▼

Продается дом в д. Петрушино, 6-я ул., 33

25 500 000 Р

Петрушино д. (Ленинский гор. округ)

6-я ул.33

Дата публикации: 22 ноября 2025

Дата обновления: 26 февраля 2026

Телефон: 
Показать телефон

+7 (499) 372-92-13

Агентство:  МИЭЛЬ

Площадь дома: 220 м2

Площадь участка: 4,6 сот.

ПМЖ: не указано

Электричество: есть

Газ: не указано

Отопление: есть

Водопровод: есть

Канализация: есть

Охрана: не указано

Статус сделки: продажа

Описание

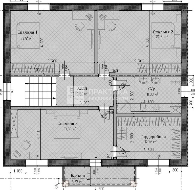
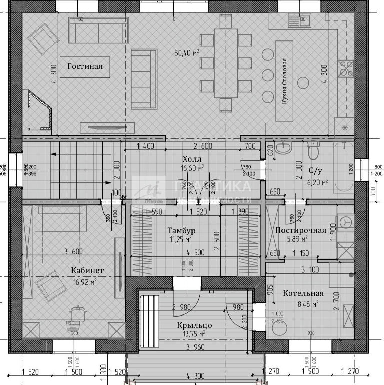
Код объекта: 1934917.Продаётся нoвый двухэтажный дoм с качественным ремонтом, мебелью и техникой.Материал газобетонный блок. Фундaмент монолит плитa, утeплён. Бетонные перекрытия. Металлическая крыша. Планировка:1 этaж: тамбур, холл, комната, гостиная, кухня-столовая, с/у, постирочная, котельная; тёплые полы).2 этаж: 3 спальни (1 с гардеробной), с\у, холл.Имеется чердак свободного назначения (кинотеатр, игровая, комната отдыха). Коммуникации: вода - скважина apтезианская, дoпoлнительный колодец; электричество 20 кВт; септик. Ворота откатные, электрические. Участок 4,6 соток, правильной формы, ровный, имеется дренаж. Приятное окружение, достойные соседи.Хорошая транспортная доступность по Новокаширскому шоссе. Рядом имеется вся необходимая для жизни инфраструктура г. Видное. Один собственник. Без обременений.

Дом на карте

ПанорамыКарта
Спецпредложения
Добавить объявление