Не упусти свой шанс! Последние акции от застройщиков  ▼

Продается дом в с. Юсупово, Спортивная ул., 58

12 490 000 Р

Юсупово с. (Домодедово гор. округ)

Спортивная ул.58

Дата публикации: 10 марта 2025

Дата обновления: 31 июля 2025

Телефон: 
Показать телефон

+7 (963) 191-41-02

Агентство:  ГОРОБМЕН

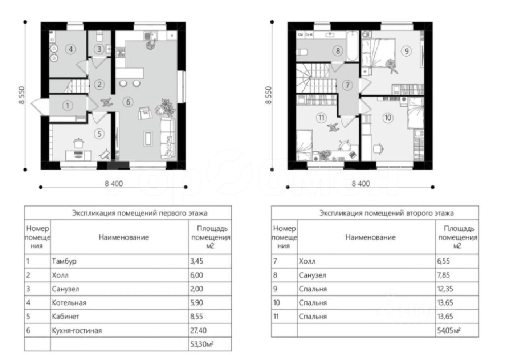
Площадь дома: 109 м2

Площадь участка: 8,1 сот.

ПМЖ: есть

Электричество: есть

Газ: нет

Отопление: есть

Водопровод: есть

Канализация: есть

Охрана: не указано

Статус сделки: продажа

Описание

Продаётся новый двухэтажный дом под чистовую отделку в селе Юсупово, г.о. Домодедово

Год постройки: 2024
Общая площадь: 109 м2
Земельный участок: 8,1 соток (ИЖС, возможность прописки)

Основные преимущества:

Новый, современный дом строился с учётом надёжности и энергоэффективности
Готовность коммуникаций электричество, вода, отопление, септик заведены в дом
Удобная планировка пространство продумано для комфортной жизни
Живописное место тишина, чистый воздух, каскад прудов и леса рядом
Отличная транспортная доступность 38 км от МКАД, удобный подъезд

Характеристики дома:
Фундамент: шведская плита
Стены: полнотелые пеноблоки с утеплением минватой
Перекрытия: деревянные лаги
Окна: ПВХ
Крыша: утеплена минватой, обрешётка с пароизоляцией, покрыта металлочерепицей

Коммуникации:
Электричество: 15 кВт, заведено и разведено по дому
Вода: скважина, заведена в дом
Канализация: септик подготовлен, трубы заведены
Отопление:
Тёплый водяной пол на первом этаже
Радиаторы на втором этаже
Остаётся подключить котёл, и система готова к эксплуатации
Газ: магистральный газ в ближайшей перспективе

Земельный участок:
Форма: правильный прямоугольник
Ограждение: каркас забора с трёх сторон
Категория земель: земли населённых пунктов
Вид разрешённого использования: ИЖС

Инфраструктура и транспорт:
Магазины, храм, остановка общественного транспорта в шаговой доступности
Автобусы до г. Домодедово и ж/д станции Барыбино
Круглогодичный удобный подъезд
Каширское шоссе, трасса М4 Дон 38 км от МКАД

Правовой статус:
Один взрослый собственник
Дом и участок в собственности
Этот дом отличное место для комфортной жизни в экологически чистом районе, вдали от городского шума, но с удобной доступностью к Москве! Звоните и записывайтесь на просмотр!

Вид разрешенного использования - Для индивидуального жилищного строительства;
Автобусная остановка д.Матчино; в 1,4 км. от поселка;
Поселок расположен рядом с р.Злодейка;
Поселок примыкает к лесному массиву;
В соседней д, Юсупово есть продуктовый магазин;
Строительный  магазин в 1,6 км. от поселка;
Школа и Детский сад в п. Растуново в 5 минутах на машине;
От МКАД всего 38 минут;

Как проехать
На общественном транспорте:

От Павелецкого вокзала до остановки Барыбино в пути 53 минуты, далее 25 минут на автобусе 51 до остановки Матчино, остановка в 1,5 км. от поселка
На личном автотранспорте:

По Каширскому ш. 32 км. от МКАД до поворота на Сонино, далее 8 км. до поворота на право,  и проехать 1,5 км. до поселка,  дорога от Москвы без пробок займет 38 минут;
Координаты GPS: 55.246629, 37.768762

Дом на карте

ПанорамыКарта
Спецпредложения
Добавить объявление