Не упусти свой шанс! Последние акции от застройщиков  ▼

Продается дом в КП Forest Lake Club ((Лесное озеро))

141 474 000 Р

Forest Lake Club ((Лесное озеро)) КП (Наро-Фоминский гор. округ)

Дата публикации: 8 апреля 2025

Дата обновления: 20 декабря 2025

Телефон: 
Показать телефон

+7 (495) 104-55-69

Агентство:  ООО Метриум

Площадь дома: 485,5 м2

Площадь участка: 12,3 сот.

ПМЖ: не указано

Электричество: не указано

Газ: не указано

Отопление: не указано

Водопровод: не указано

Канализация: не указано

Охрана: не указано

Статус сделки: продажа

Описание

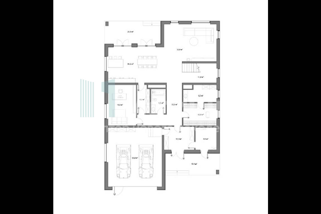
ID 14175 Стильный коттедж Berry с двумя парковочными местами воплощает эстетичную лаконичность и функциональность. Фасад дома выполнен в кирпиче ручной формовки природного терракотового оттенка и планкене светлого цвета.
За счёт смещения объёмов и разнонаправленности кирпичной кладки экстерьер смотрится представительно и актуально. Функциональная планировка позволяет разместить на первом этаже просторную кухню-гостиную, кабинет, ванную комнату и гардеробную, а также хозяйственные помещения: полностью оборудованную котельную и кладовую. В зоне гостиной предусмотрено место для установки камина, здесь же находится выход на личную террасу. На втором этаже расположены мастер-спальня, две детские, а также две гардеробные и ванные комнаты.
"Маслово Forest Club" посёлок премиум-класса в одном из знаковых мест Подмосковья. Современная архитектура и скандинавский подход к организации пространства отражены в простой геометрии домов и комфортных планировках. А натуральные материалы, используемые для фасадов, надолго сохранят эстетические и физические свойства каждого дома. Современные загородные дома среди вековых сосен в одном из знаковых мест Подмосковья. Актуальная архитектура с чистыми линиями и своё уютное пространство, располагающее к общению. Рядом живописные верховья Москвы-реки и Николина Гора, где есть рестораны высокой кухни, художественные галереи и спортивные центры.

Дом на карте

ПанорамыКарта

Похожие объявления

Площадь: 485,5 м2 Площадь: 12,4 сот. 

135 000 000 Р

Площадь: 485,5 м2 Площадь: 12 сот. 

133 058 000 Р

Площадь: 486,8 м2 Площадь: 12,6 сот. 

141 852 000 Р

Площадь: 485,5 м2 Площадь: 13,1 сот. 

144 063 000 Р

Площадь: 486,8 м2 Площадь: 11,8 сот. 

133 414 000 Р
Спецпредложения
Добавить объявление