Не упусти свой шанс! Последние акции от застройщиков  ▼

Продается дом в д. Селевкино

12 000 000 Р

Селевкино д. (Дмитровский гор. округ)

Дата публикации: 14 февраля 2026

Дата обновления: 27 февраля 2026

Телефон: 
Показать телефон

+7 (499) 372-92-13

Агентство:  МИЭЛЬ

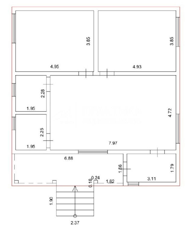
Площадь дома: 107,4 м2

Площадь участка: 8 сот.

ПМЖ: не указано

Электричество: есть

Газ: не указано

Отопление: есть

Водопровод: есть

Канализация: есть

Охрана: не указано

Статус сделки: продажа

Описание

Код объекта: 2043139.Продается дом для круглогодичного проживания в д. Селевкино Дмитровского р-на Московской области в 50 км от МКАД. Фундамент: железобетонные (ЖБ) сваи - срок службы такого фундамента превышает 70-100 лет.Надежность. Свайные конструкции надежно фиксируют грунт, обеспечивая прочность основания на различных почвах.Прочность. Свайное основание, в отличие от бетонного, не боится морозов, не растрескивается при перепадах температуры. Дом каркасный: энергоэффективное строение, усадка фундамента не требуется, что позволяет вам сразу приступить к отделке, высокий уровень теплоизоляции, хорошо держит тепло, что значительно снижает затраты на отопление.Общая площадь - 107,4 м2, жилая - 58,6 м2 = большая гостиная зона с кухней +с/узел, две спальни, терраса с зоной отдыха.Внутренняя отделка стен: влагостойкий гипсокартон (ГКЛВ), который обеспечивает идеально ровные поверхности, пожаробезопасность, звукоизоляцию и предотвращает появление плесени и деформацию стен.Проведена электрика внутри дома, электроэнергия - 15 кВт.Водоснабжение - артезианская скважина (глубина 190 м).Септик от лидирующей компании в России и СНГ - "Евролос".Кровля - мягкая черепица Шинглас.Дом готов к внутренней отделке. По периметру земельного участка установлен капитальный забор на фундаменте и каменных столбах. Удобная подъездная дорога.Земельный участок: общая площадь - 8 соток, правильной формы. По периметру земельного участка установлен капитальный забор на фундаменте и каменных столбах. Удобная подъездная дорога. Инфраструктура: поселок расположен в шаговой близости от лесного массива, Зеленого пруда, Долгого пруда. В соседней д. Протасово - детский сад, школа, поликлиника, продовольственные магазины, ОЗОН, почта. Транспортная доступность: объект расположен в 22 км от города Дмитров, в южном направлении и в 50 км от МКАД,остановка Селевкино = (2 200 метров), ст. ж/д Морозки - 16 мин. на тр-те, ст. ж/д Дмитров - 25 км на автобусе 43, ст. ж/д Зеленоградская - 27 км на автобусе 37Ближайшие крупнейшие населенные пункты: с. Игнатово (3 км на запад), деревни Протасово (3 км на юг), Дубровки (4 км на север). Рядом находятся: деревни: Голенищево (1 км на юг), Морозово (1 км на юго-западе), Муракино (2 км на юго-запад), Лотосово (2 км на северо-восток), Мелихово (3 км на северо-восток). Работать с МИЭЛЬ выгодно и надёжно. Ипотека приветствуется. Мы гарантируем безопасную сделку и юридическую поддержку нашим клиентам. Поможем одобрить ипотеку со сниженной ставкой. Не упустите шанс стать обладателем этой уютной квартиры! Свободная продажа.Оперативные показы.

Дом на карте

ПанорамыКарта
Спецпредложения
Добавить объявление