Не упусти свой шанс! Последние акции от застройщиков  ▼

Продается дом в КП Дубровка, д., 216

30 000 000 Р

Дубровка КП (Дмитровский гор. округ)

Дата публикации: 4 января 2025

Дата обновления: 22 апреля 2026

Телефон: 
Показать телефон

+7 (915) 331-90-67

Агентство:  ЦЗН ПРОСПЕКТ МИРА

Площадь дома: 400 м2

Площадь участка: 40 сот.

ПМЖ: не указано

Электричество: не указано

Газ: не указано

Отопление: не указано

Водопровод: не указано

Канализация: не указано

Охрана: не указано

Статус сделки: продажа

Описание

Звоните!  Добротный дом в классическом стиле.
1-й этаж:  кухня-столовая, каминный зал, санузел, кладовая, гардеробная, спальня с санузлом.
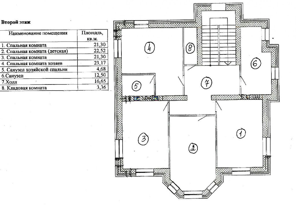
2-й этаж 4 спальни (одна с санузлом), кладовая, санузел.
Мансарда помещение свободного назначения
Цоколь котельная, электрощитовая, возможно размещение бани, спортзала/ мастерской, бильярдной, кинозала, винного погреба/холодной кладовки.
ПОД КЛЮЧ, также имеется: 2-х этажный гостевой дом 130 м 2 (бревно с утеплителем), отопление газовым котлом . В доме кухня, гостиная, 2 спальни, 2 санузла, мебелирован;
Отдельно стоящая баня в стиле шале 55 м 2 (пеноблок, бревно) парилка с дровяной печью и зоной отдыха с камином (возможно отопление и горячее водоснабжение газовым котлом); оборудованная зона барбекю 48 м 2 (пеноблок) с водоподведением.
Участок 40 соток с ухоженным газоном, с различными деревьями дубы, березы, ели, туи, много сосен. Участок выровнен, дренирован, система полива, дорожки, освещение. Газ 100 кВт. Электричество трехфазное, 19 кВт. Интернет.
Продам жилой  дом в ДНП Дубровка.
 (блок, утеплитель 100мм, облицовочный кирпич), железобетонные перекрытия, потолки 3 м полноценный цоколь.
Крыша металлочерепица, 2-х камерные стеклопакеты "REHAU", система обогрева с газовым котлом Viessmann, электрика, телефония, вентиляция, системы водоснабжения и канализации разведены. Установлена профессиональная система водоочистки. Две скважины. Септик "ТОПАС"
3-й этаж мансардный, без отделки.

Дом на карте

ПанорамыКарта

Похожие объявления

Площадь: 956,5 м2 Площадь: 30 сот. 

72 000 000 Р
Спецпредложения
Добавить объявление