Не упусти свой шанс! Последние акции от застройщиков  ▼

Продается помещение свободного назначения, Знаменские Садки ул., 5Б

35 000 000 Р

160 550 за м.кв.

Знаменские Садки ул.

Дата публикации: 5 июля 2025

Дата обновления: 31 декабря 2025

Телефон: 
Показать телефон

+7 (916) 466-07-77

Агентство:  ГОРОБМЕН

Класс: не указано

Площадь min: 218 м2

Площадь max: 218 м2

Этаж: 2

Охрана: не указано

Парковка: есть

Территория: не указано

Статус сделки: продажа

Описание

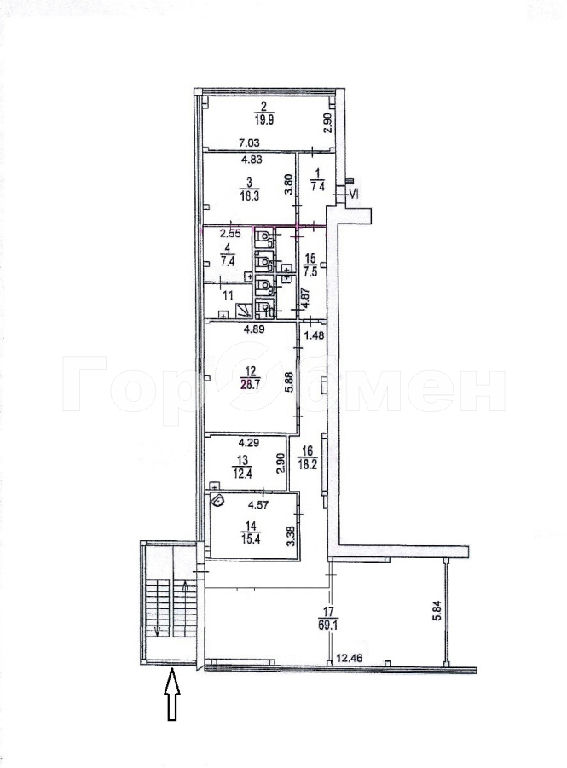
Продается помещение свободного назначения 218 кв.м. с двумя отдельными входами в 7 минутах пешком от ст. метро Бульвар Дмитрия Донского (ул. Старокачаловская). Обособленное помещение на 2-м этаже двухэтажного торгово-офисного центра, вход с улицы по закрытой лестнице только в это помещение. Перед входом имеется закрепленная парковка на несколько автомобилей. Сейчас планировка кабинетная, но благодаря отсутствию несущих стен возможны различные варианты перепланировки. Имеется второй (запасный) выход. Приточно-вытяжная вентиляция, сигнализация, выделенная мощность 23 кВт. с возможностью увеличения. Часть помещений сданы в аренду, суммарная МАП 300000 руб. , но при необходимости использования помещения только под свои нужды все арендаторы съедут за 30 дней. Здание расположено в густонаселенном жилом квартале, возможное использование - под офис, гостиницу или хостел, медцентр, услуги, торговлю и др. В собственности юрлица с 2016 г., продажа по ДКП. Выплатим бонус риэлтору покупателя. Показы по предварительной договоренности.

Помещ.свободного назначения на карте

ПанорамыКарта

Похожие объявления

Спецпредложения
Добавить объявление