Не упусти свой шанс! Последние акции от застройщиков  ▼

Продается 4-комнатная квартира, Никитский бул., 17

64 500 000 Р

Никитский бул.17

Дата публикации: 21 октября 2025

Дата обновления: 27 октября 2025

Телефон: 
Показать телефон

+7 (495) 647-00-00

+7 (903) 708-72-72

Агентство:  ТРИУМФАЛЬНАЯ АРКА

Этаж: 7 / 8

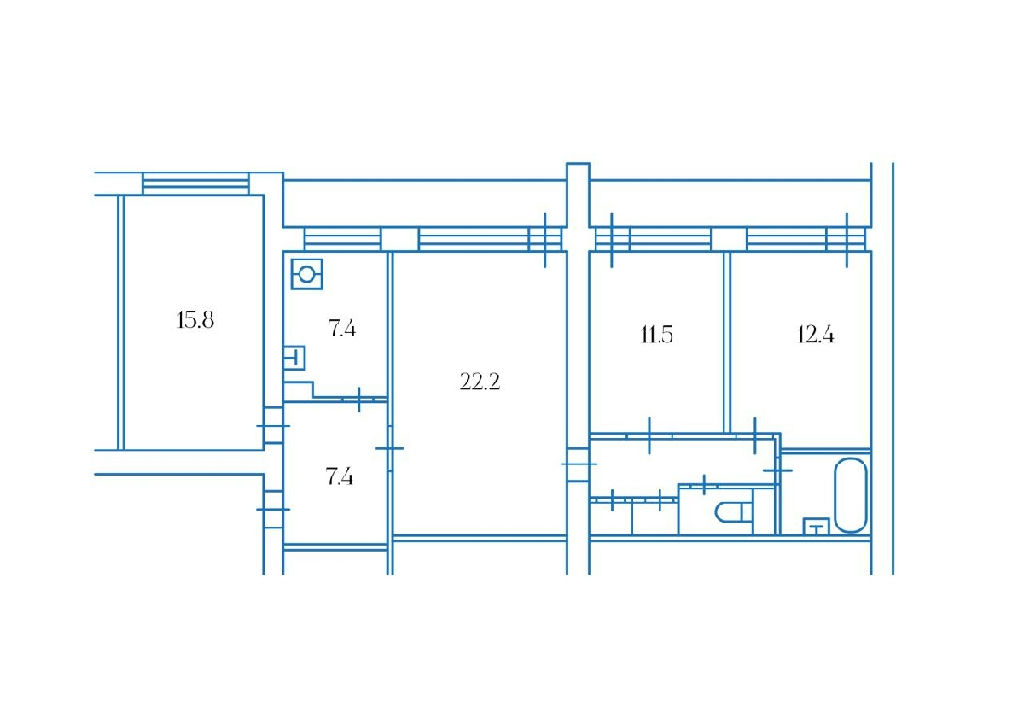
Общая: 87,4 м2

Жилая: 61,9 м2

Кухня: 7,2 м2

Комнаты: 15,8-14,3+19,4-12,4 м2

Балкон/лоджия: две лоджии

Лифт: есть лифт

Окна: окна на улицу

Санузел: раздельный

Мусоропровод: есть

Состояние квартиры: требуется ремонт

Тип дома: кирпичный

Год постройки: 1971

Территория: огороженная

Парковка: есть

Статус сделки: продажа

Сделка: прямая продажа

Собственность: не указано

Основание права собственности: не указано

Описание

ОН 22855. Дом в историческом центре Москвы!
Расположение дома это несомненный плюс данной квартиры. В пешей доступности Красная Площадь, Арбат, Тверская, Садовое кольцо со всеми историческими памятниками, театрами, музеями, бульварами, скверами, множеством ресторанов и кафе.
Продается 4-х комнатная квартира общей площадью 87,4 кв. м. ( без учета 2-х лоджий ), с лоджиями общая площадь 92,7 кв. м., жилая площадь 62 кв. м., планировка квартиры "линейка".
Квартира находится на 7 этаже, окна которой смотрят на Никитский бульвар, перед вами открываются панорамные виды на исторический и культурный центр Москвы.

В доме и в подъезде недавно был выполнен капитальный ремонт с заменой внутридомовых коммуникаций, установлены новые лифты.
Въезд на территорию двора за шлагбаумом, для жильцов дома всегда есть место для парковки автомобиля.

Прозрачная история квартиры, квартира всегда была в собственности одной семьи.
Свободная продажа. Полная стоимость в договоре. Зарегистрированных нет.

Оперативный показ. Звоните прямо сейчас, чтобы узнать детали и записаться на просмотр!

Квартира на карте

ПанорамыКарта

Похожие объявления

Этаж: 5  Площадь: 142 м2

135 000 000 Р

Этаж: 5  Площадь: 143 м2

135 000 000 Р
Спецпредложения
Добавить объявление