Не упусти свой шанс! Последние акции от застройщиков  ▼

Продается 3-комнатная квартира, Студенческая ул., 20

119 027 811 Р

Студенческая ул.20

Дата публикации: 6 мая 2014

Дата обновления: 27 октября 2025

Телефон: 
Показать телефон

+7 (495) 162-82-98

Агентство:  Welhome

Этаж: 7 / 15

Общая: 109 м2

Жилая: 76 м2

Кухня: не указано

Комнаты: не указано

Балкон/лоджия: лоджия

Лифт: не указано

Окна: не указано

Санузел: не указано

Мусоропровод: не указано

Состояние квартиры: без отделки

Тип дома: монолитно-кирпичный

Год постройки: 2009

Территория: огороженная

Парковка: не указано

Статус сделки: продажа

Сделка: не указано

Собственность: не указано

Основание права собственности: не указано

Описание

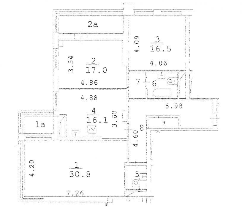
ID объекта на сайте Welhome: G-1406. На продажу предлагается квартира без отделки, свободной планировки, расположенная на 7 этаже в современном жилом комплексе на Студенческой, 20.Спланировать пространство можно следующим образом: кухня, гостиная, две спальни, два санузла, гардеробная комната. К квартире прилегают две лоджии.Высота потолков 3 м.Отличный вид на три стороны: центр, Москвуреку и ММДЦ Москва-Сити.В подземном паркинге возможно приобретение или аренда любого количества машиномест.Новый жилой комплекс расположен в одном из самых лучших и наиболее престижных мест Москвы на Кутузовском проспекте.Комплекс состоит из 2-х разноуровневых корпусов (15-ти этажный корпус "А" и 8-ми этажный корпус "Б"). Тип дома каркас-монолит, самонесущие кирпичные стены. Первые два этажа облицованы гранитом, остальные кирпичом в сочетании с натуральным камнем. Начиная с 7-ого этажа предусмотрен выход на открытую площадку.

Квартира на карте

ПанорамыКарта

Похожие объявления

Этаж: 5  Площадь: 75,6 м2

57 860 000 Р

Этаж: 7  Площадь: 109 м2

119 027 811 Р

Этаж: 7  Площадь: 109 м2

119 027 811 Р

Этаж: 7  Площадь: 109,8 м2

113 359 820 Р

Этаж: 7  Площадь: 109,8 м2

113 776 600 Р

Этаж: 7  Площадь: 109,8 м2

113 776 600 Р
Спецпредложения
Добавить объявление