Не упусти свой шанс! Последние акции от застройщиков  ▼

Продается 2-комнатная квартира, Планетная ул., 7

21 799 999 Р

Планетная ул.7

Дата публикации: 5 января 2026

Дата обновления: 15 января 2026

Телефон: 
Показать телефон

+7 (926) 010-52-72

Агентство:  ГОРОБМЕН

Этаж: 3 / 5

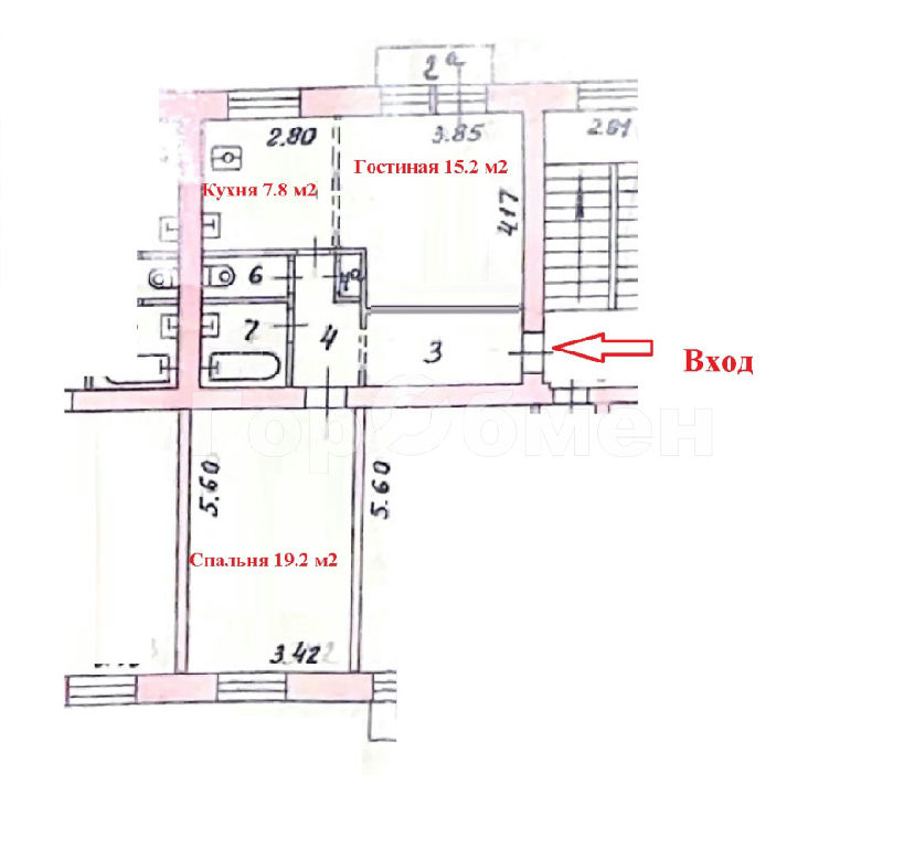
Общая: 56 м2

Жилая: 34,4 м2

Кухня: 7,8 м2

Комнаты: 15.2 19.2 м2

Балкон/лоджия: балкон

Лифт: не указано

Окна: окна на улицу

Санузел: раздельный

Мусоропровод: нет

Состояние квартиры: евроремонт

Тип дома: деревянный

Год постройки: 1959

Территория: не указано

Парковка: не указано

Статус сделки: продажа

Сделка: прямая продажа

Собственность: не указано

Основание права собственности: не указано

Описание

ОПЕРАТИВНЫЙ ПОКАЗ! ПОЛНАЯ СУММА В ДОГОВОРЕ!ОДИН ВЗРОСЛЫЙ СОБСТВЕННИК! БЕЗ ОБРЕМЕНЕНИЯ!
Продаю ШИКАРНУЮ ДВУХКОМНАТНУЮ квартиру на 3 этаже 5 этажного Кирпичного дома в стороне от основных дорог в окружении деревьев.
Общая площадь квартиры 56 м2. Светлая гостиная 15.2 м2 с выходом на застекленный балкон. Просторная спальня 19.2 м2. Уютная кухня 7.8 м2. Раздельный санузел! Высокие потолки2.8 м.
В квартире сделан качественный дизайнерский ремонт с зонированием пространства и использованием дорогих и экологически чистых материалов. Электрика и сантехника заменены на новую! В зимнее время батареи топят очень хорошо! Мощный кондиционер поможет жарким летом.
В доме производился капитальный ремонт с заменой всех коммуникаций и электрики в 2021 году.
Квартира укомплектована всей необходимой дорогой европейской мебелью и бытовой техникой.
ПОДЪЕЗД ЧИСТЫЙ БЕЗ ПОСТОРОННИХ ЗАПАХОВ.
Большая детская площадка. Много парковочных мест вокруг дома.
Развитая и сложившаяся инфраструктура в шаговой доступности: школы и сады, взрослая и детская поликлиники, сетевые супермаркеты (Пятёрочка, ВкусВилл, Мираторг, Азбука вкуса), салоны красоты, аптека, пекарня, кафе и рестораны, фитнес-клуб с тренажёрным залом, остановка общественного транспорта, благоустроенный Петровский парк, станции метро Динамо, Петровский Парк, Аэропорт и Гражданская и многое другое.

Помогаем в получение и снижение процентов по ипотеке!
ОПЕРАТИВНЫЙ ПОКАЗ!
ПОЛНАЯ СУММА В ДОГОВОРЕ!
ОДИН ВЗРОСЛЫЙ СОБСТВЕННИК!
БЕЗ ОБРЕМЕНЕНИЯ!
В 10 минутах пешком от метро Аэропорт, Динамо и Петровский парк.

Квартира на карте

ПанорамыКарта

Похожие объявления

Этаж: 5  Площадь: 43,6 м2

13 999 999 Р
Спецпредложения
Добавить объявление