Не упусти свой шанс! Последние акции от застройщиков  ▼

Продается дом в КП Крекшино

141 094 852 Р

Крекшино КП (Марушкинское поселение)

Дата публикации: 27 марта 2024

Дата обновления: 30 января 2026

Телефон: 
Показать телефон

+7 (495) 162-82-98

Площадь дома: 300 м2

Площадь участка: 13 сот.

ПМЖ: не указано

Электричество: не указано

Газ: магистральный

Отопление: центральное

Водопровод: магистральный

Канализация: центральная

Охрана: нет

Статус сделки: продажа

Описание

ID объекта на сайте Welhome: Z-14982. Предлагается современный дом под ключ в элитном КП Крекшино.Двухэтажный коттедж со стенами из теплой керамики RAUF. Отделка внутреннего пространства выполнена по индивидуальному дизайнерскому проекту с использованием только натуральных материалов: мрамор, дерево, эко краски.На первом этаже просторная гостиная-столовая с камином EDIL KAMIN, кухня с выходом на террасу и задний двор, гараж на 2 м/м. Второй этаж отдан приватной зоне с хозяйской спальней и двумя детскими спальнями. Все спальни с выходами на балконы. Этажи соединяет лестница облицованная цельными ступенями и подступенками из слэбов натурального мрамора Crema Marfil. Ограждение ? массив бука, тонированный в цвет межкомнатных дверей, комбинированный с изящными стойками из металла. Окна и двери деревянные с двойным стеклопакетом. Подоконники ?мрамор Crema Marfil. Кухня VITALY. Ванные комнаты оснащены стильной сантехникой VALENTE, Jacob Delafon, Fanal Natura Viento. Установлен котел немецкой фирмы Viessmann Vitocell на 200 л.На участке высажен газон, вымощены дорожки, установлено уличное освещение.

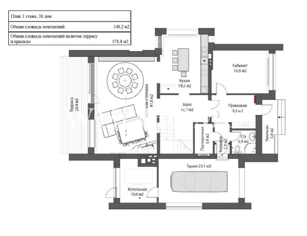
Поэтажное описание
1 этаж: холл, гостиная-столовая, кухня, кабинет, постирочная, котельная, гараж;
2 этаж: холл, спальня с гардеробной и с/у, 2 спальни, с/у.

Дом на карте

ПанорамыКарта

Похожие объявления

Площадь: 359 м2 Площадь: 13 сот. 

95 627 132 Р

Площадь: 300 м2 Площадь: 13 сот. 

141 094 852 Р

Площадь: 359 м2 Площадь: 13 сот. 

95 627 132 Р

Площадь: 359 м2 Площадь: 13 сот. 

95 627 132 Р

Площадь: 300 м2 Площадь: 13 сот. 

141 094 852 Р
Спецпредложения
Добавить объявление