Не упусти свой шанс! Последние акции от застройщиков  ▼

Продается дом в КП Крекшино

95 627 132 Р

Крекшино КП (Марушкинское поселение)

Дата публикации: 26 марта 2024

Дата обновления: 29 января 2026

Телефон: 
Показать телефон

+7 (495) 162-82-98

Площадь дома: 359 м2

Площадь участка: 13 сот.

ПМЖ: не указано

Электричество: не указано

Газ: магистральный

Отопление: центральное

Водопровод: магистральный

Канализация: центральная

Охрана: нет

Статус сделки: продажа

Описание

ID объекта на сайте Welhome: Z-14981. Предлагается современный дом под ключ в элитном КП Крекшино.Отделка внутреннего пространства выполнена по индивидуальному дизайнерскому проекту с использованием только натуральных материалов: мрамор, дерево, эко краски.На первом этаже просторная гостиная-столовая с камином Имперадор Дарк, кухня с выходом на террасу и задний двор, гараж на 2 м/м. Второй этаж отдан приватной зоне с хозяйской спальней и двумя детскими спальнями. Все спальни с выходами на балконы. Этажи соединяет лестница на больцах выполненная из массива ясеня.Окна и двери деревянные с двойным стеклопакетом. В кухне встроенная бытовая техника Bosch. В хозяйской спальне установлена итальянская мебель Antonio Lupi. Ванные комнаты оснащены стильным французским гарнитуром Jacob Delafon и Villeroy&Boch. Установлен котел немецкой фирмы Viessmann Vitogas 050.На участке высажен газон, вымощены дорожки, установлено уличное освещение.

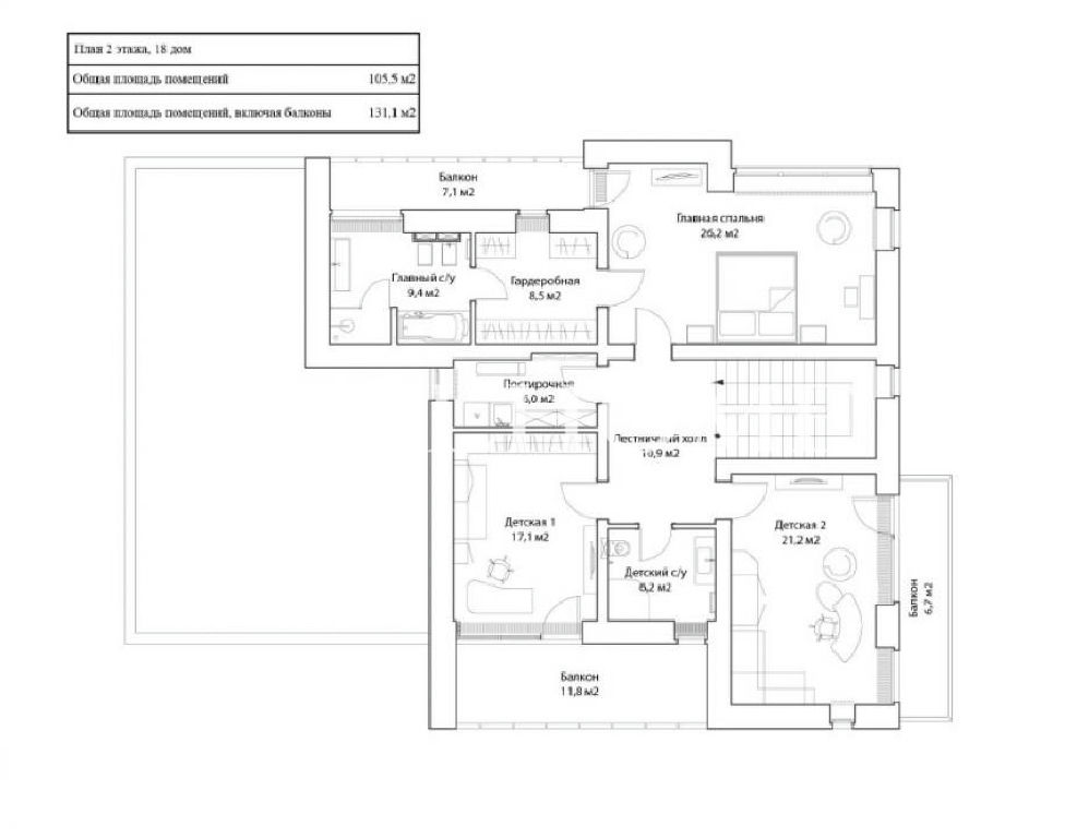
Поэтажное описание
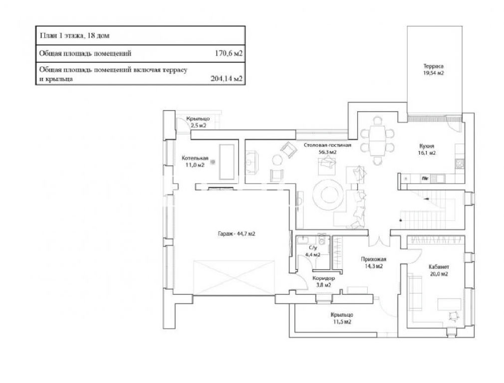
1 этаж: холл, гостиная-столовая, кухня, кабинет, котельная, с/у, гараж на 2 м/м;
2 этаж: холл, спальня с гардеробной и с/у, 2 спальни, с/у, постирочная.

Дом на карте

ПанорамыКарта

Похожие объявления

Площадь: 359 м2 Площадь: 13 сот. 

95 627 132 Р

Площадь: 300 м2 Площадь: 13 сот. 

141 094 852 Р

Площадь: 359 м2 Площадь: 13 сот. 

95 627 132 Р

Площадь: 300 м2 Площадь: 13 сот. 

141 094 852 Р

Площадь: 300 м2 Площадь: 13 сот. 

141 094 852 Р
Спецпредложения
Добавить объявление