Не упусти свой шанс! Последние акции от застройщиков  ▼

Сдается помещение свободного назначения, Быковское ш., 90А

490 000 Р

1 141 за м.кв.

Малаховка пгт (Люберцы гор. округ)

Быковское ш.90А

Дата публикации: 4 апреля 2026

Дата обновления: 27 мая 2026

Телефон: 
Показать телефон

+7 (926) 533-33-32

Агентство:  Простор-недвижимость

Класс: не указано

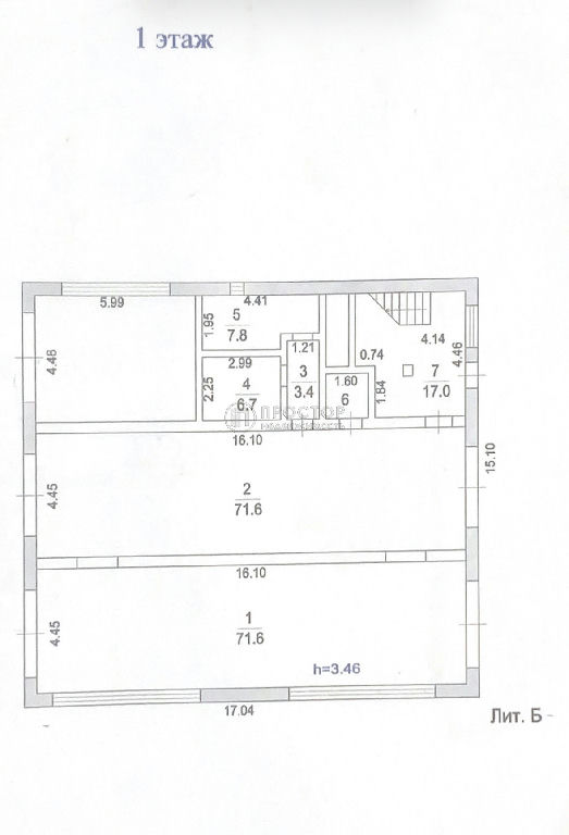
Площадь min: 429,4 м2

Площадь max: 429 м2

Этаж: 1

Охрана: не указано

Парковка: не указано

Территория: не указано

Срок аренды: длительный срок

Описание

Код объекта: 2113305.
Здание в аренду на длительный срок.
Расположение: Московская область, г. о. Люберцы, рп. Малаховка, Быковское шоссе, 90а.
Ключевые параметры:
- Площадь: 208,7 кв. м (первый этаж) и 207,2 кв. м (второй этаж), возможность функционального разделения.
- 4 независимых входа, отдельный доступ на второй этаж.
- Земельный участок: 7 соток (организация парковки, круговое движение).
- Инфраструктура: собственная котельная (170 кВт), электроснабжение (150 кВт с возможностью масштабирования), скважина, система вытяжки.
- Дополнительные возможности: открытая веранда на крыше, рекламные билборды.

Высокая проходимость: рядом заправка "Газпромнефть", Быковское шоссе, ЖК "Дом в Малаховке" (заселение в текущем году).
Подходит для сетевых ритейлеров и предприятий общепита. Предусмотрены арендные каникулы.
Записывайтесь на просмотр!

Помещ.свободного назначения на карте

ПанорамыКарта
Спецпредложения
Добавить объявление