Не упусти свой шанс! Последние акции от застройщиков  ▼

Сдается помещение свободного назначения, Южный бул., 4

250 000 Р

2 165 за м.кв.

Битца пос. (Ленинский гор. округ)

Южный бул.4

Дата публикации: 21 января 2026

Дата обновления: 5 февраля 2026

Телефон: 
Показать телефон

+7 (499) 372-92-13

Агентство:  МИЭЛЬ

Класс: не указано

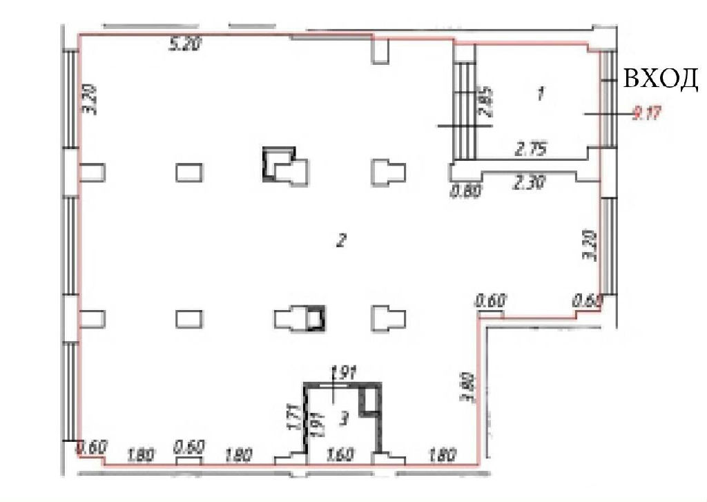
Площадь min: 115,5 м2

Площадь max: 116 м2

Этаж: 1

Охрана: не указано

Парковка: не указано

Территория: огороженная

Срок аренды: длительный срок

Описание

Код объекта: 2002356.Предлагается в длительную аренду просторное помещение свободного назначения площадью 115,5 кв.м., расположенное на первом этаже жилого дома в активно развивающемся жилом комплексе "Южная Битца" на первой линии.Отдельный вход с улицы, обеспечивающий удобство для клиентов и организации логистики.Расположено напротив крупного медицинского центра, что способствует высокой проходимости.Свободная планировка помещение без отделки, готовое под реализацию вашего проекта.Высота потолков более 4,5 метров обеспечивает простор и комфорт.Витринное остекление создает привлекательную фасадную экспозицию.Холодная/горячая вода, канализация, электричество, вентиляция.Выделяемая мощность электросети 0,2 кВт/кв.м (23кВТ), что позволяет реализовать разнообразные виды деятельности.Ремонтные каникулы 3 месяца для проведения необходимого ремонта и подготовки помещения.Ежегодная индексация - 7%.Оплата за электричество, воду, канализацию, отопление и вывоз мусора осуществляется отдельно, сверх арендной платы.Отдельно оплачиваются услуги по размещению вывесок и рекламы на фасаде.Минимальный срок аренды 36месРекомендуемые сферы использования: аптека, салон красоты, стоматологическая клиника, кафе, пиццерия, пекарня, продуктовый/строительный магазин, алкомаркет, шоурум, отделение банка или другой вид коммерческой деятельности.

Помещ.свободного назначения на карте

ПанорамыКарта

Похожие объявления

Этаж: 1  Площадь: 201,3 м2

300 000 Р

Этаж: 1  Площадь: 52 м2

110 000 Р
Спецпредложения
Добавить объявление