Андроновка (МЦК) (5 мин. пешком)
Андроновка м. (МЦД-3) (8 мин. пешком)
Авиамоторная м. (МЦД-3) (9 мин. пешком)
Новая станция (9 мин. пешком)
Дата публикации: 25 июля 2025
Дата обновления: 19 февраля 2026
+7 (499) 372-92-13
19 250 000 Р
271 127 за м.кв.
Андроновка (МЦК) (5 мин. пешком)
Андроновка м. (МЦД-3) (8 мин. пешком)
Авиамоторная м. (МЦД-3) (9 мин. пешком)
Новая станция (9 мин. пешком)
Дата публикации: 25 июля 2025
Дата обновления: 19 февраля 2026
+7 (499) 372-92-13
Класс: не указано
Площадь min: 71 м2
Площадь max: 71 м2
Этаж: 1
Охрана: есть
Парковка: не указано
Территория: не указано
Статус сделки: продажа
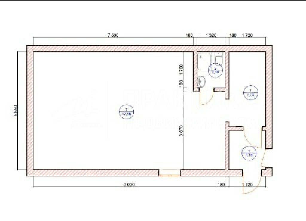
Код объекта: 1698993.Продается безупречное Производственное помещение , Общепит, свободное назначение.Москвва, м.Авиамоторная , 2-я улица Энтузиастов, 5к1. Очень востребованный объект - всегда очередь из 5-6 ти арендаторов. ЛокацияПомещение находится на территории БЦ "Компрессор".Первый этаж !!!!! отдельно стоящего зданияПлощадь 71 м2 (производство + склад, 2 входа)Электричество 30 кВт. (8р - кВт,ч) Помещение спроектировано в соответствии с СанПиН 2.3/2.4.3590-20. МАП - 100 000.р (низ рынка).ГАП - 1200 000.р Помещение находится на закрытой охраняемой территории Бизнес Парка Компрессор.Пропускная система. Возможность работы 24/7. Подъезд большегрузного транспорта.сейчас в помещении располагается пищевое производство.Состав помещений- складская зона (отдельный вход)- производствоВНИМАНИЕ!План помещения без учёта склада.Склад находится справа - отдельный вход.Так же ,есть возможность аренды помещений под офис-бухгалтерию (на втором этаже, над производством) Оборудование:приточно-вытяжная вентиляция, холодильная и морозильная камера, кондиционер, стеллажи. Коммуникации: холодная вода - центральная, горячая вода - бойлер, канализация - центральная, электричество.Помещение снимали в аренду с 2015 г.- Кейтеринг (производство бизнес ланчей )- Пекарня- Производство сыров- Производство сублимированных фруктов- Производство кормов для животных Транспортная доступность М. Авиамоторная, 10 мин пешком, станция Новая 5 мин, МЦК Андроновка, 3мин.ИФНС 20. СобственникОснование: ДКП 2015г. Собственник ФИЗ. лицо. (1 собственник)Обременений и долгов - нет.Подходит под ипотеку.Условия продажиДКП, полная сумма Причина продажи Переезд в другой город.