Не упусти свой шанс! Последние акции от застройщиков  ▼

Продается помещение свободного назначения, Костякова ул., 10

2 500 000 Р

117 371 за м.кв.

Костякова ул.10

Дата публикации: 28 февраля 2026

Дата обновления: 3 марта 2026

Телефон: 
Показать телефон

+7 (916) 814-82-31

Агентство:  ГОРОБМЕН

Класс: не указано

Площадь min: 21,3 м2

Площадь max: 21 м2

Этаж: 1

Охрана: не указано

Парковка: не указано

Территория: огороженная

Статус сделки: продажа

Описание

Помещение свободного назначения без отделки, 600 м от метро Тимирязевская .
Отдельный кадастровый номер, все данные внесены в ЕГРН.

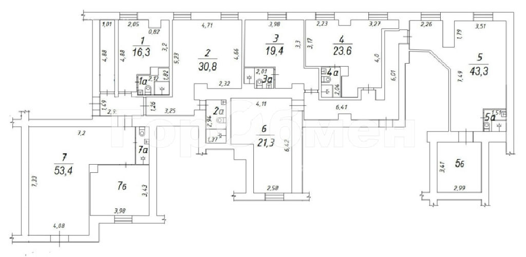
По документу площадь помещения (номер 6 на схеме) 21,3 кв.м Полезная площадь около 15 кв.м - в углу комнаты трубы (при желании можно отгородить стеной, конечно, оставив к ним доступ).

В помещении одно окно, есть мокрая точка, можно организовать санузел.

Цокольный этаж 6-ти этажного уникального жилого дома ("сталинка", в доме до сих пор работает легендарный кинотеатр Искра). Вход через подъезд.

Большой огороженный двор, мест для парковки всегда достаточно.

Старый густонаселенный район Москвы со сложившейся инфраструктурой.

Покупайте - для себя, для сдачи в аренду, просто спрятать деньги от инфляции. В собственности физлица. Полная стоимость в договоре. Быстрый выход на сделку.

Помещ.свободного назначения на карте

ПанорамыКарта

Похожие объявления

Спецпредложения
Добавить объявление