Не упусти свой шанс! Последние акции от застройщиков  ▼

Продается помещение свободного назначения, Ухтомская ул., 6

3 500 000 Р

118 243 за м.кв.

Ухтомская ул.6

Дата публикации: 30 сентября 2025

Дата обновления: 17 января 2026

Телефон: 
Показать телефон

+7 (916) 814-82-31

Агентство:  ГОРОБМЕН

Класс: не указано

Площадь min: 29,6 м2

Площадь max: 30 м2

Этаж: не указано

Охрана: не указано

Парковка: не указано

Территория: не указано

Статус сделки: продажа

Описание

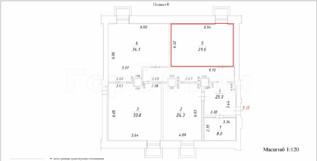
Помещение свободного назначения (отдельный кадастровый номер) готовый арендный бизнес или для личного пользования.

Площадь 29,6 кв.м, ( 5 на плане), офисная отделка, полноценное окно.

Кабинетная планировка, санузел на этаже. Два входа с улицы и из подъезда.

Цокольный этаж пятиэтажного кирпичного дома. Окна в приямках.

Большой двор, мест для парковки всегда достаточно.

Старый обжитой густонаселенный район Москвы с развитой инфраструктурой.

Отличная транспортная доступность: метро, удобные выезды на СВХ, ТТК, набережную, шоссе Энтузиастов.

Помещение оптимально под офис, пункт выдачи, склад и т.д.

Все помещения на плане в продаже.

Документы полностью готовы к сделке. Полная стоимость в ДКП. Возможна ипотека.

Помещ.свободного назначения на карте

ПанорамыКарта

Похожие объявления

Спецпредложения
Добавить объявление