Автозаводская (5 мин. пешком)
Автозаводская м. (МЦК) (8 мин. пешком)
ЗИЛ м. (МЦК) (15 мин. пешком)
Москва-Товарная станция (14 мин. пешком)
Дата публикации: 19 сентября 2025
Дата обновления: 11 декабря 2025
+7 (495) 921-21-84
223 000 000 Р
263 251 за м.кв.
Автозаводская (5 мин. пешком)
Автозаводская м. (МЦК) (8 мин. пешком)
ЗИЛ м. (МЦК) (15 мин. пешком)
Москва-Товарная станция (14 мин. пешком)
Дата публикации: 19 сентября 2025
Дата обновления: 11 декабря 2025
+7 (495) 921-21-84
Класс: не указано
Площадь min: 847,1 м2
Площадь max: 847 м2
Этаж: 5
Охрана: не указано
Парковка: есть
Территория: не указано
Статус сделки: продажа
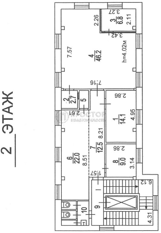
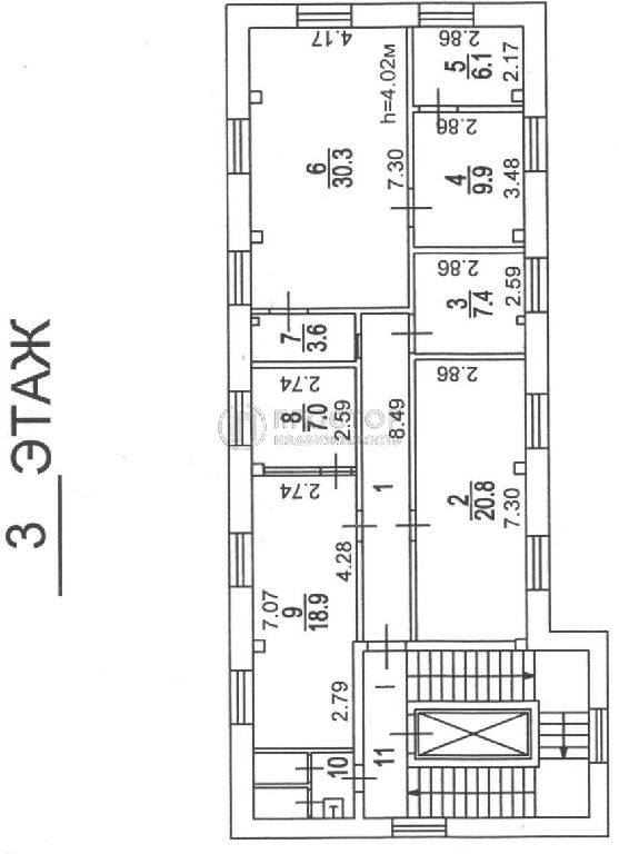
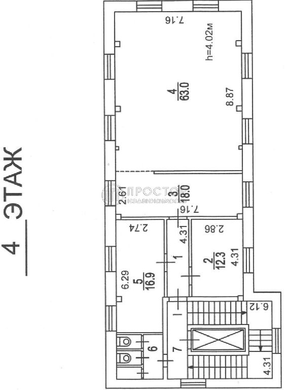
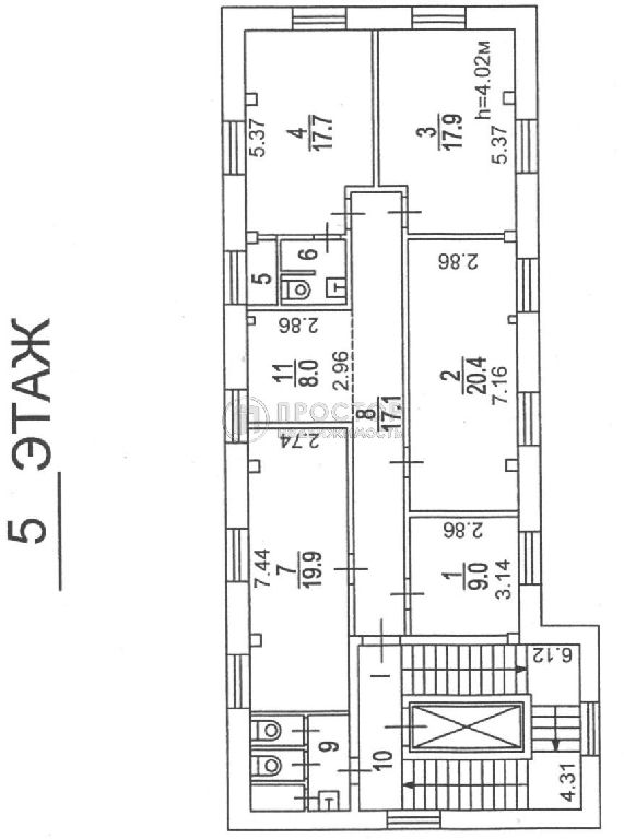
Код объекта: 1631281.Прямой представитель собственника!!! Вашему вниманию предлагается отдельно стоящее здание (офисно-складское помещение) в историческом районе столицы неподалеку от Симонова Монастыря- памятника 14 века; ТЦ Румер и памятника конструктивизма, построенного в 1930-х годах как многофункциональный дворец культуры ЗИЛ. До станции метро Автозаводская две-три минуты спокойным шагом. Кирпичное здание в стиле английского фабричного брутализма площадью 847.1 кв.м, с потолками от 3 м, оборудованное системой кондиционирования, приточно-вытяжной вентиляцией, системами тепло и водоснабжения от БЦ "Омега Плаза", противопожарной и пропускной системами (СКУД). Имеются тревожная и охранная сигнализации; системы видеонаблюдения и снеготаяния. Электричество (прямой договор с ОЭК, мощность 90 кВт). Оптический канал (прямой договор с АО Мегафон). Пассажирский лифт с 1 по 5 этажи. Капитальный ремонт здания проведен в 2012 г. Несколько слов о планировке: в подвале расположено складское помещение с подъемником до первого этажа, оборудованного пандусом и служебным выходом для погрузки;на первом этаже КПП, склад, кабинет и санузел;на втором расположен ресепшн, рекреационная зона, 2 кабинета, зал open space;на третьем 4 кабинета и санузел;на четвертом 3 кабинета и санузел;пятый этаж оборудован залом для переговоров, просторной кухней. Кроме этого, 4 кабинета и санузел. Во всем здании большие окна ПВХ, на последнем этаже- мансардные. Помещение с отделкой, готово к въезду. Несколько этажей заняты надежными арендаторами с договорами на длительный срок. Высокая арендная ставка (30.000 за квадратный метр в год). Всегда есть парковочные места на территории БЦ "Омега Плаза" (прямой договор). Оперативные показы по предварительной договоренности. Свободная продажа. Проведение сделки гарантировано стандартами Гильдии риэлторов Москвы. Уважаемые покупатели и коллеги-риэлторы, звоните- с удовольствием отвечу на ваши вопросы.