ЦСКА (7 мин. пешком)
Зорге м. (МЦК) (14 мин. пешком)
Хорошевская м. (16 мин. пешком)
Полежаевская м. (17 мин. пешком)
Дата публикации: 2 октября 2025
Дата обновления: 4 октября 2025
+7 (909) 906-62-02
59 000 000 Р
430 029 за м.кв.
ЦСКА (7 мин. пешком)
Зорге м. (МЦК) (14 мин. пешком)
Хорошевская м. (16 мин. пешком)
Полежаевская м. (17 мин. пешком)
Дата публикации: 2 октября 2025
Дата обновления: 4 октября 2025
+7 (909) 906-62-02
Класс: не указано
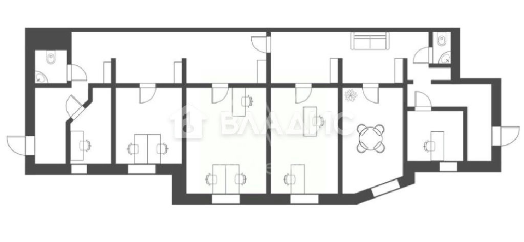
Площадь min: 137,2 м2
Площадь max: 137 м2
Этаж: 1
Охрана: не указано
Парковка: есть
Территория: огороженная
Статус сделки: продажа
Код объекта: 1820867. Продается офисное помещение 137,2 кв. м. ( 6 кабинетов ) на первом этаже Жилого комплекса "Гранд-парк" по адресу Ходынский бульвар д.19Помещение располагается внутри Жилого комплекса, Два отдельных входа, два санузла, установлены системы приточно-вытяжной вентиляция и центрального кондиционирования. Подземная парковка. Сделана офисная отделка.Закрытая территория ЖК. видеонаблюдение .Стоимость объекта 59 000 000 рублей