Не упусти свой шанс! Последние акции от застройщиков  ▼

Продается офис, Пресненская наб., 6С2

199 900 000 Р

884 513 за м.кв.

Пресненская наб.6С2

Дата публикации: 27 марта 2026

Дата обновления: 28 марта 2026

Телефон: 
Показать телефон

+7 (499) 372-92-13

Агентство:  МИЭЛЬ

Класс: A+

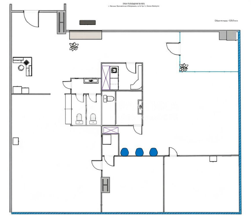
Площадь min: 226 м2

Площадь max: 226 м2

Этаж: 48

Охрана: не указано

Парковка: есть

Территория: огороженная

Статус сделки: продажа

Описание

Код объекта: 2095509.ОписаниеПродажа офисного помещения, 226 м2, Башня "Империя", Москва-Сити Объект: Офисное помещение в башне "Империя" одном из самых статусных небоскребов Москва-Сити.Откройте для себя престижное рабочее пространство башни "Империя" в самом сердце Москва-Сити. Идеальное решение для компаний, стремящихся к успеху.Предлагается на продажу современное офисное помещение в одном из главных бизнес-центров Москвы. Обеспечена привлекательная инфраструктура и удобное расположение в деловом районе.О бизнес-центре Башня "Империя" 60-этажный небоскреб, Класс А+, построенный в 2011 году.Общая площадь здания 198 712 м2, площадь под аренду 121 497 м2 (метод расчета BOMA).Налоговая (участок) 3-я.Параметры помещения (226 м2): Шаг колонн 810 м Черновая высота потолка 4,0 м Чистовая высота потолка 3,33,5 м Оснащение: Системы климат-контроляСкоростной интернетСистемы видеонаблюденияУровень безопасности: Круглосуточная охранаКонтроль доступаПарковка Подземная 40 000 за место в месяц (коэффициент: 1 место на 100 м2)Городская 400 в часГостевая, велосипедная, мото-парковкаИнфраструктура здания Зона ожидания для гостей, банкомат, столовая, кафе, ресторан, кофе-поинт, бар, фитнес-центр, аптека, химчистка.Транспортная доступность Добираться до Башни "Империя" удобно на любом виде транспорта:Удобный съезд с Третьего транспортного кольцаПодземное сообщение со станциями метро "Деловой центр", "Выставочная", "Международная"Платформа "Деловой центр" Московского центрального кольцаВысокоскоростные лифты, развитая инфраструктура, самое удобное расположение к метро.Преимущества Расположение в центре делового округа МосквыБлизость к транспортной инфраструктуре: станции метро, транспортные развязкиРазвитая инфраструктура района: рестораны, банки, бизнес-услугиУсловия Гибкие условия продажиВозможность арендовать парковочные местаПостоянное обслуживание и техническая поддержкаДанное предложение подходит для компаний, ищущих современное и престижное офисное пространство в центре города.

Офис на карте

ПанорамыКарта

Похожие объявления

Этаж: 47  Площадь: 437 м2

393 000 000 Р

Этаж: 47  Площадь: 220,8 м2

189 900 000 Р

Этаж: 47  Площадь: 217 м2

177 940 000 Р

Этаж: 46  Площадь: 196 м2

176 400 000 Р
Спецпредложения
Добавить объявление