Не упусти свой шанс! Последние акции от застройщиков  ▼

Продается студия, Бирюлевская ул., 24к1

4 600 000 Р

Бирюлевская ул.24к1

Дата публикации: 2 марта 2026

Дата обновления: 2 марта 2026

Телефон: 
Показать телефон

+7 (903) 191-78-45

Агентство:  ГОРОБМЕН

Этаж: 1 / 14

Общая: 14 м2

Жилая: 7 м2

Кухня: 3 м2

Комнаты: 7 м2

Балкон/лоджия: не указано

Лифт: не указано

Окна: окна во двор

Санузел: совмещенный

Мусоропровод: не указано

Состояние квартиры: хорошее состояние

Тип дома: блочный

Год постройки: 1971

Территория: не указано

Парковка: не указано

Статус сделки: продажа

Сделка: прямая продажа

Собственность: не указано

Основание права собственности: не указано

Описание

вартира-студия (апартаменты) с качественным ремонтом и стильным дизайном.
Отдельный кадастровый номером, все сведения внесены в ЕГРН.

Студия расположена в одном из наиболее инвестиционно-интересных районов Москвы - активными темпами ведется строительство метро (станция минут 5-7 пешком от дома). Открытие метро увеличивает стоимость недвижимости до 30 процентов!!!

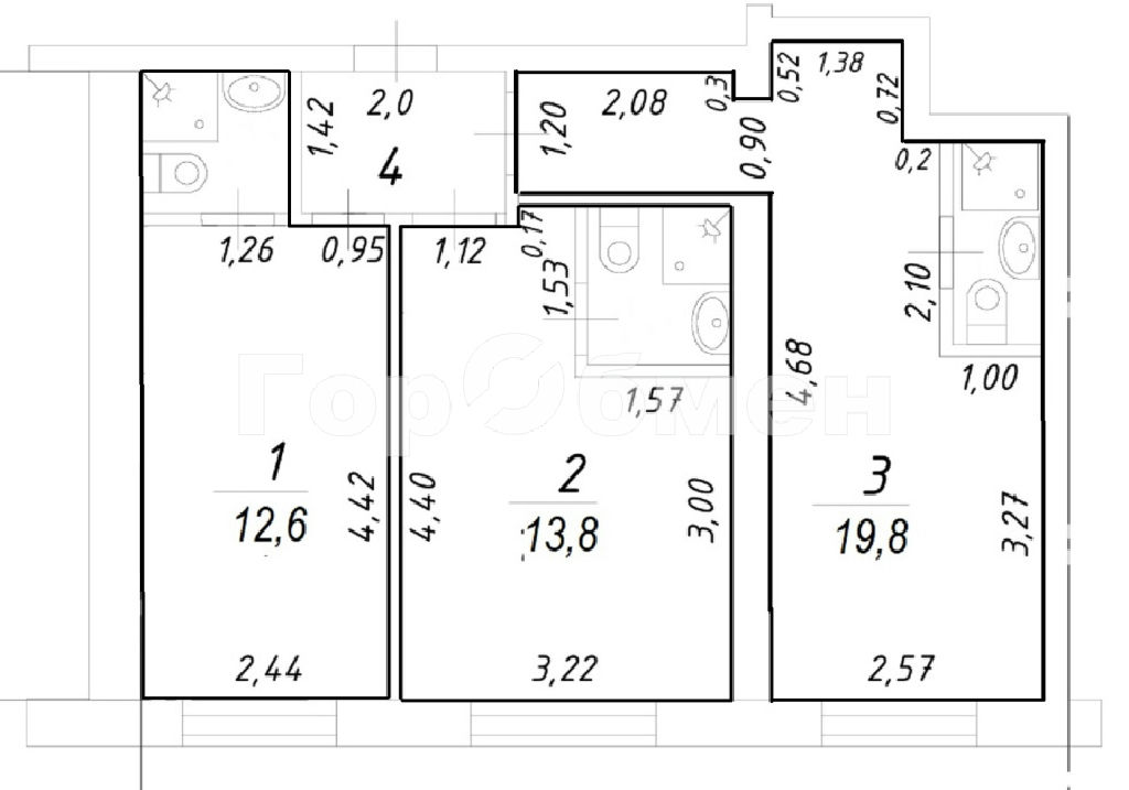
Высокий первый этаж 14-ти этажного дома. Студия 2 на схеме. Площадь 13,6 кв.м, санузел совмещенный, выводы под кухню, установлены счетчики воды и электроэнергии. Окна выходят во двор.

Тихий большой двор, много зелени, двор ухоженный, территория благоустроена.Во дворе всегда есть места для парковки.

Насыщенная инфраструктура, все самое необходимое в шаговой доступности. Зеленый район. Рядом большой дендропарк, парк-усадьба Царицыно.

Прекрасный вариант, как для проживания, так и для сдачи в аренду (спрос высокий).

В собственности физлица, полная стоимость в договоре. Возможна ипотека.

Квартира на карте

ПанорамыКарта

Похожие объявления

Этаж: 1  Площадь: 12,6 м2

4 500 000 Р

Этаж: 1  Площадь: 20 м2

5 500 000 Р

Этаж: 1  Площадь: 19,8 м2

5 800 000 Р

Этаж: 1  Площадь: 12,6 м2

4 800 000 Р
Спецпредложения
Добавить объявление