Не упусти свой шанс! Последние акции от застройщиков  ▼

Продается студия, Владимирская 3-я ул., 3К2

3 750 000 Р

Владимирская 3-я ул.3К2

Дата публикации: 20 марта 2025

Дата обновления: 30 апреля 2025

Телефон: 
Показать телефон

+7 (926) 487-06-95

Агентство:  ГОРОБМЕН

Этаж: 1 / 5

Общая: 12 м2

Жилая: 8 м2

Кухня: 2 м2

Комнаты: 8 м2

Балкон/лоджия: не указано

Лифт: не указано

Окна: окна во двор

Санузел: совмещенный

Мусоропровод: не указано

Состояние квартиры: хорошее состояние

Тип дома: кирпичный

Год постройки: 1961

Территория: не указано

Парковка: не указано

Статус сделки: продажа

Сделка: прямая продажа

Собственность: не указано

Основание права собственности: не указано

Описание

Отдельный кадастровый номер, отделка под ключ - заезжай и живи!!! 

Отличный бюджетный вариант.

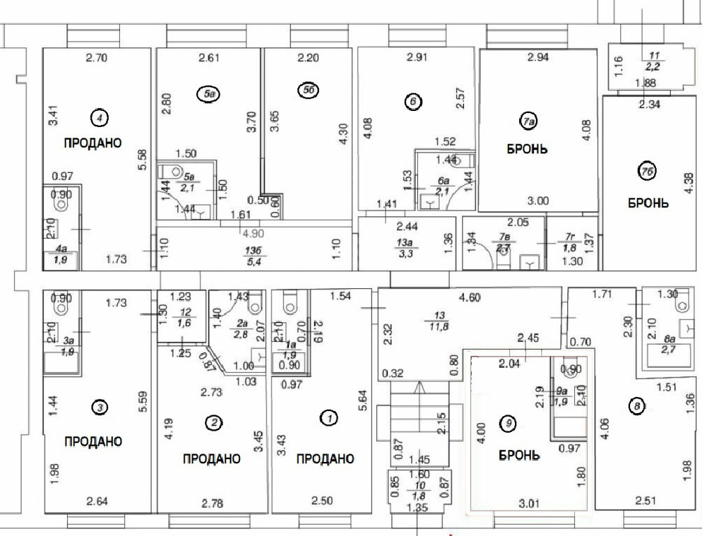
Студия-апартаменты, 3-я Владимирская, дом 3, корп. 2, высокий первый этаж жилого дома, площадь 12 кв.м (номер 6 на плане), после капитального ремонта с заменой коммуникаций, санузел совмещенный, установлена кухня (прописки нет - апартаменты).

Коммунальные платежи, налоги, как в обычной квартире (апартаменты в жилом доме).

Дом в тихом дворе, мест для парковки всегда достаточно. Вся необходимая для жизни инфраструктура рядом.

Хорошая транспортная доступность: метро Перово, удобный выезд на шоссе Энтузиастов.

Студия вполне комфортна для проживания 1-2-х человек Интересный вариант, как для проживания, так и для сдачи в аренду.

Покупайте - для себя, для сдачи в аренду, просто спрятать деньги от инфляции. Звоните, есть варианты площадей, есть варианты без отделки (идут отделочные работы).

В собственности у физ. лица. Возможна ипотека.

Квартира на карте

ПанорамыКарта
Спецпредложения
Добавить объявление