Не упусти свой шанс! Последние акции от застройщиков  ▼

Продается студия, Погонный пр-д, 1К9

4 200 000 Р

Погонный пр-д1К9

Дата публикации: 2 июля 2025

Дата обновления: 28 октября 2025

Телефон: 
Показать телефон

+7 (903) 191-78-45

Агентство:  ГОРОБМЕН

Этаж: 2 / 5

Общая: 11,7 м2

Жилая: 6 м2

Кухня: 2 м2

Комнаты: 6 м2

Балкон/лоджия: не указано

Лифт: не указано

Окна: окна во двор

Санузел: совмещенный

Мусоропровод: не указано

Состояние квартиры: хорошее состояние

Тип дома: кирпичный

Год постройки: 1961

Территория: не указано

Парковка: не указано

Статус сделки: продажа

Сделка: прямая продажа

Собственность: не указано

Основание права собственности: не указано

Описание

Студия-апартамент в старом зеленом районе Москвы, с дизайнерским ремонтом, мебелью и техникой, полностью готова к проживанию.

Отдельный кадастровый номер.

Цена действительна при бронировании студии до 31 октября, включительно.

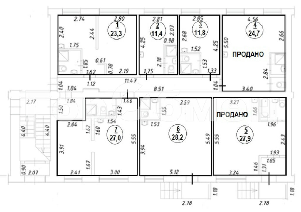
Погонный проезд, дом 1, корпус 9, 2 этаж пятиэтажного кирпичного жилого дома, 9 на плане.

Площадь 12 кв.м, окна выходят во двор, установлена кухня, двуспальная кровать, техника, счетчики на воду и электричество и т.д., заезжай и живи.

Коммунальные платежи, как в обычной квартире (апартаменты в жилом доме).

Свой подъезд на два апарт-этажа. Есть выбор площадей на первом и втором этажах.

Большой обустроенный двор, всегда достаточно мест для парковки.

Эта студия идеальный выбор для тех, кто ищет комфортное жильё в хорошем районе. В студии выполнен качественный ремонт, который создаёт приятную атмосферу и позволяет новым владельцам сразу заселиться без дополнительных вложений.

Кирпичный дом обеспечивает отличную шумо- и теплоизоляцию, а также долговечность конструкции.

Вся необходимая для жизни инфраструктура, отличная транспортная доступность: метро, наземный транспорт, удобный выезд на СВХ. Все для досуга, прогулок и отдыха, много зелени, рядом парк Лосиный остров.

Есть выбор площадей

Отличный вариант, как для проживания, так и для сдачи в аренду. Полностью готовы к сделке. Полная стоимость в договоре. В собственности физлица. Ипотека возможна. Звоните, и мы с радостью ответим на все ваши вопросы и организуем просмотр.

Квартира на карте

ПанорамыКарта

Похожие объявления

Этаж: 2  Площадь: 13,3 м2

3 800 000 Р

Этаж: 1  Площадь: 11,8 м2

3 600 000 Р
Спецпредложения
Добавить объявление