Не упусти свой шанс! Последние акции от застройщиков  ▼

Продается 5-комнатная квартира, Рословка ул., 12к3

66 000 000 Р

Пенягино метро (МЦД-2) (Северо-Западный адм. округ)

Рословка ул., 12к3

Дата публикации: 25 апреля 2026

Дата обновления: 26 апреля 2026

Телефон: 
Показать телефон

+7 (499) 286-73-12

Агентство:  МИЭЛЬ

Этаж: 4 / 4

Общая: 167,5 м2

Жилая: 86,3 м2

Кухня: 12 м2

Комнаты: не указано

Балкон/лоджия: лоджия

Лифт: есть лифт

Окна: окна во двор

Санузел: совмещенный

Мусоропровод: не указано

Состояние квартиры: дизайнерский ремонт

Тип дома: монолитный

Год постройки: 2004

Территория: огороженная

Парковка: не указано

Статус сделки: продажа

Сделка: прямая продажа

Собственность: не указано

Основание права собственности: не указано

Описание

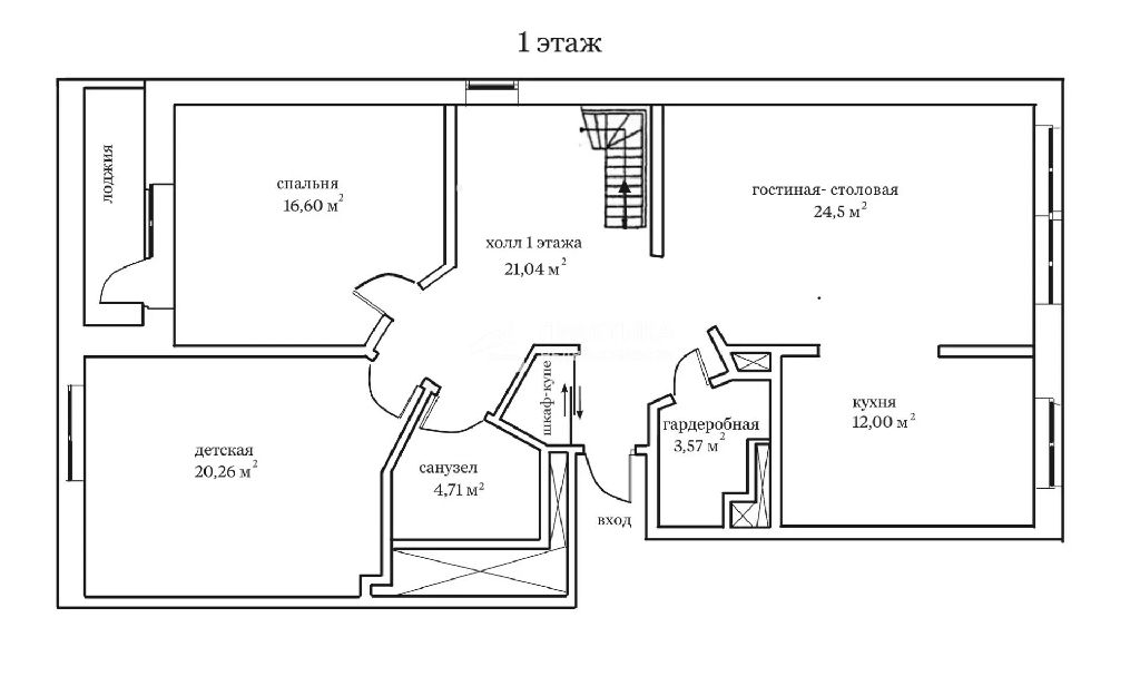
Код объекта: 2148382.ДВУХУРОВНЕВАЯ КВАРТИРА 167,5 м2, Митинский Оазис-2 у ландшафтного парка "Митино", малоэтажная застройка, огороженная территория. Квартира для комфортного проживания большой семьи: 4 изолированные спальни, кабинет и просторная гостиная-столовая. Окна на парк и уютный двор.БЕЗОПАСНОСТЬ СДЕЛКИ И ЮРИДИЧЕСКАЯ ЧИСТОТА: Единственный собственник более 5 лет. Никто не прописан. Свободная продажа. Полная стоимость в договоре. Квартира без обременений, подходит под ипотеку любого банка. Все документы на руках, быстрый выход на сделку.ГЛАВНЫЕ ПРЕИМУЩЕСТВА: приватность: малоэтажный дом: 8 квартир в подъезде, 2 квартиры на этаже. Закрытый поселок из 10 домов, огороженная территория, въезд под шлагбаум.ПЛАНИРОВКА И ОСНАЩЕНИЕ: 1 УРОВЕНЬ (106 м2) Пространство для отдыха. Кухня-гостиная 36,5 м2: объединенная зона гостиной и кухни. Две просторные комнаты: уютная спальня (16,6 м2) с лоджией (4 м2) и большая детская (20,3 м2). Гардеробная (3,57 м2). Санузел (4,71 м2). Холл с дизайнерской лестницей.2 УРОВЕНЬ (94 м2) Приватная мансарда: Две спальни (16,7 и 16,4 м2) вдали от гостевой зоны. Кабинет (12 м2) - идеальное место для работы с собственной библиотекой. SPA-зона (15,3 м2) - большая ванная комната с финской джакузи Novitek и 3й приватный санузел. Все системы хранения в гардеробной, спальнях, детской и кабинете выполнены по индивидуальному заказу. Квартира с качественным ремонтом и проверенными инженерными системами: многозонные электрические теплые полы (холл, кухня, санузлы), два автономных бойлера на период отключения горячей воды. Состояние квартиры позволяет заехать сразу. ЛОКАЦИЯ: Малоэтажный поселок расположен между двумя парками: 2 минуты пешком до входа в Ландшафтный парк "Митино" (в парке живут лебеди) и 1 минута до парка "Метростроя". В шаговой доступности находятся лучшие школы, магазины, бассейны и фитнес-клубы. ТРАНСПОРТНАЯ ДОСТУПНОСТЬ: метро Митино, метро Волоколамская, МЦД Пенягино. Эта квартира - идеальное решение для тех, кто ищет свободное пространство, спокойствие, безопасность и близость к природе.Звоните! С удовольствием покажу Вам квартиру и отвечу на все вопросы.

Квартира на карте

ПанорамыКарта

Похожие объявления

Этаж: 3  Площадь: 161,2 м2

57 000 000 Р
Спецпредложения
Добавить объявление