Не упусти свой шанс! Последние акции от застройщиков  ▼

Продается 5-комнатная квартира, Руновский пер., 12

340 000 000 Р

Руновский пер.12

Дата публикации: 31 декабря 2025

Дата обновления: 14 января 2026

Телефон: 
Показать телефон

+7 (495) 104-56-15

Агентство:  ООО Метриум

Этаж: 8 / 22

Общая: 245 м2

Жилая: не указано

Кухня: не указано

Комнаты: не указано

Балкон/лоджия: лоджия

Лифт: не указано

Окна: не указано

Санузел: три санузла

Мусоропровод: не указано

Состояние квартиры: первичная отделка

Тип дома: кирпичный

Год постройки: 2023

Территория: огороженная

Парковка: не указано

Статус сделки: продажа

Сделка: прямая продажа

Собственность: не указано

Основание права собственности: не указано

Описание

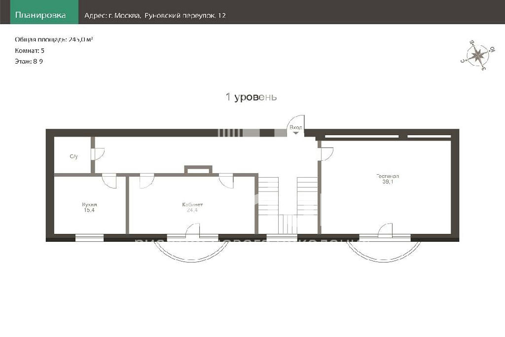
ID 25150 Предлагается вашему вниманию видовой двухуровневый пентхаус, расположенный по адресу: Руновский переулок, д. 12, в жилом комплексе "Золотое Руно". Этот уникальный объект недвижимости сочетает в себе качество ремонта и эксклюзивность расположения.

Пентхаус занимает два уровня и оформлен в современном стиле, предоставляя уют и комфорт. На первом уровне располагается просторная гостиная, которая идеально подходит для приема гостей и семейных вечеров. Гостевой санузел обеспечивает удобство для посетителей. Кабинет с выходом на лоджию идеально подходит как для работы, так и для отдыха. Просторная оборудованная кухня станет настоящей находкой для любителей кулинарии.

На втором уровне находится мастер-спальня с собственным большим санузлом, который обеспечивает максимальный комфорт и приватность. Здесь же располагаются две детские спальни, которые создают уютную атмосферу для проживания детей.

В квартире присутствует вся необходимая мебель и современная бытовая техника, что позволяет сразу же наслаждаться жизнью в этом замечательном пентхаусе.

Одним из главных преимуществ данного объекта являются потрясающие виды на Кремль и центр Москвы, которые открываются из окон и с лоджии.

Жилой комплекс "Золотое Руно" предлагает своим жителям подземный паркинг, а также охраняемую территорию с видеонаблюдением, что обеспечивает высокий уровень безопасности и комфорта.

Этот пентхаус станет идеальным выбором для тех, кто ценит качество, стиль и удобство городской жизни.

Квартира на карте

ПанорамыКарта
Спецпредложения
Добавить объявление