Не упусти свой шанс! Последние акции от застройщиков  ▼

Продается 5-комнатная квартира, Удальцова ул., 85К1

73 480 000 Р

Удальцова ул.85К1

Дата публикации: 9 апреля 2026

Дата обновления: 9 апреля 2026

Телефон: 
Показать телефон

+7 (991) 778-36-52

Агентство:  Джойнио

Этаж: 12 / 13

Общая: 167 м2

Жилая: 145 м2

Кухня: 14,9 м2

Комнаты: не указано

Балкон/лоджия: две лоджии

Лифт: лифт пассажирский

Окна: окна во двор и на улицу

Санузел: есть санузел

Мусоропровод: нет

Состояние квартиры: дизайнерский ремонт

Тип дома: кирпичный

Год постройки: 1995

Территория: огороженная

Парковка: есть

Статус сделки: продажа

Сделка: прямая продажа

Собственность: не указано

Основание права собственности: не указано

Описание

Просторная 5-комнатная квартира с дизайнерским ремонтом и высокими потолками. Отличный вариант для семьи, которая ценит комфорт и статусное расположение в престижном районе Москвы. Возможна ипотека.
Расположение и транспорт:
8 минут пешком от м. "Мичуринский проспект".
Район: Проспект Вернадского один из самых зеленых и престижных районов Москвы.
Дом: 13-этажный (квартира на последних этажах 12 и 13).
О квартире:
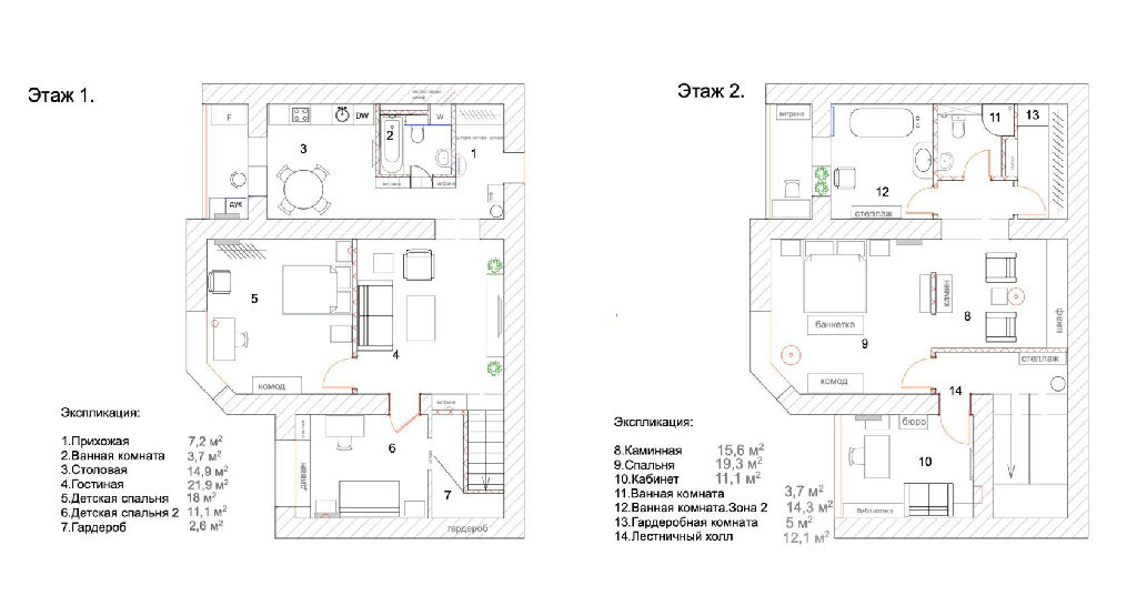
Формат: Двухуровневая квартира.
Площадь: 167 м2.
Планировка: 5 изолированных комнат достаточно пространства для большой семьи, кабинета и гостевой зоны.
Высота потолков: 3.2 метра создает ощущение воздуха и свободы.
Санузлы: 1 раздельный + 2 совмещенных максимальное удобство для всех членов семьи.
Остекление: 2 лоджии, окна выходят на две стороны (во двор и на улицу).
Ремонт и состояние:
Качественный современный ремонт по авторскому проекту можно въезжать и жить, не тратя время и деньги на отделку.
Покрытие полов: паркет и плитка.
Бонус: по договоренности можем оставить мебель переезжайте с комфортом.
Условия продажи:
Цена: 73 480 000 руб. (прямая продажа от собственника).
Возможна ипотека включая семейную (уточняйте условия).
Обременения: нет, чистая продажа.
Для просмотра:
Свяжитесь с нами, чтобы увидеть квартиру своими глазами и почувствовать атмосферу этого пространства. Готовы ответить на любые вопросы. Контактное лицо: Никита [#8190711#]

Квартира на карте

ПанорамыКарта
Спецпредложения
Добавить объявление