Не упусти свой шанс! Последние акции от застройщиков  ▼

Продается 4-комнатная квартира, Дмитровский пр-д, 1

87 500 000 Р

Дмитровская метро (МЦД-2) (Северный адм. округ)

Дмитровский пр-д, 1

Дата публикации: 13 ноября 2025

Дата обновления: 15 января 2026

Телефон: 
Показать телефон

+7 (964) 621-72-32

Агентство:  АН НДВ

Этаж: 55 / 58

Общая: 125 м2

Жилая: 64 м2

Кухня: не указано

Комнаты: не указано

Балкон/лоджия: не указано

Лифт: не указано

Окна: не указано

Санузел: не указано

Мусоропровод: не указано

Состояние квартиры: дизайнерский ремонт

Тип дома: монолитный

Год постройки: 2022

Территория: огороженная

Парковка: подземная

Статус сделки: продажа

Сделка: прямая продажа

Собственность: не указано

Основание права собственности: не указано

Описание

Лот 48362052. Предлагаем вашему вниманию видовую четырехкомнатную квартиру с просторной гостиной в жилом небоскребе D1 в двух минутах от метро и мцк, недалеко от центра Столицы.

Квартира со свежим дизайнерским ремонтом. В настоящий момент доделываем мелочи, ручки, зеркала, краны.

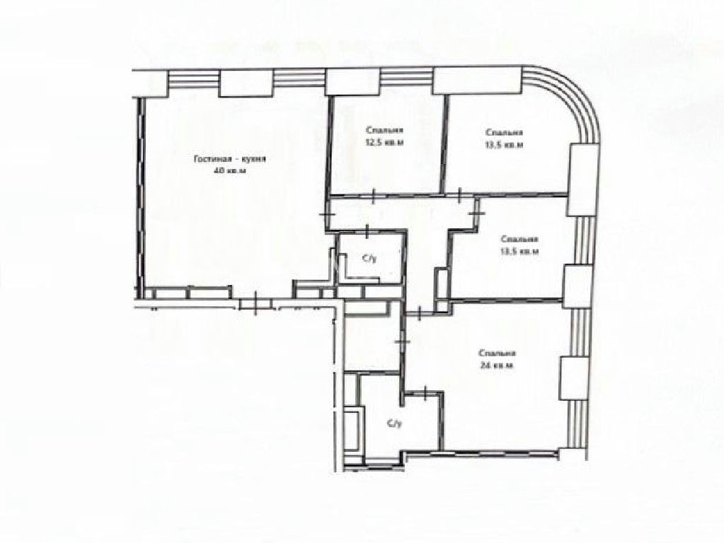
Кухня гостиная площадью 40м2 со всей бытовой техникой и множеством систем хранения. Три комнаты по 13м2 и мастер- спальня 24м2. Все встроенные шкафы в спальнях и коридоре выполнены по индивидуальному заказу. В трех спальнях кровати трансформеры с диванами и системами хранения. Два санузла с душевой кабиной и ванной. В комплексе центральное кондиционирование, а в каждой квартире предусмотрена приточно-вытяжная вентиляция.

В квартире панорамное остекление и всегда много света. Окна выходят на восточную и северную стороны.

Жилой комплекс бизнес класса от MR Group построен с заботой о своих жителях.

Авторская отделка фасадов и входной группы, ландшафтный двор с детской и игровой площадкой, зоной для отдыха, где приятно могут провести время и взрослые и дети.

Круглосуточная консьерж служба и видеонаблюдение, вход на территорию возможен по face ID, QR коду или PIN коду. Предусмотрены колясочные, кладовые комнаты, лапомойки в холле. На подземном паркинге оборудованы места для зарядки электромобилей, располагается автомойка.

Вблизи множество крупных парков города, ВДНХ и ПКиО Сокольники, Главный Ботанический сад, а в пешей доступности Гончаровский и Тимирязевский парки, парк "Дубки".

Вокруг комплекса уже давно сформированная инфраструктура, а на первых этажах расположены супермаркет, кафе, аптека, образовательный центр. В пешей доступности два Арт-кластера "Хлебзавод" и дизайн-завод FLACON со множеством дизайнерских магазинов, кафе, выставочных залов и площадок для мероприятий, где каждый находит возможность провести время с удовольствием. Летом здесь работает бассейн под открытым небом, зимой каток.

Свободная продажа, один взрослый собственник.
Звоните, ответим на ваши вопросы по квартире и с радостью пригласим на просмотр.

Квартира на карте

ПанорамыКарта
Спецпредложения
Добавить объявление