Не упусти свой шанс! Последние акции от застройщиков  ▼

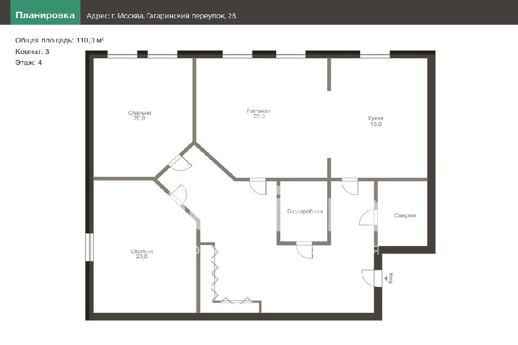
Продается 3-комнатная квартира, Гагаринский пер., 28

93 459 350 Р

Гагаринский пер.28

Дата публикации: 27 марта 2024

Дата обновления: 27 октября 2025

Телефон: 
Показать телефон

+7 (495) 104-56-15

Агентство:  ООО Метриум

Этаж: 4 / 22

Общая: 110 м2

Жилая: не указано

Кухня: не указано

Комнаты: не указано

Балкон/лоджия: не указано

Лифт: не указано

Окна: не указано

Санузел: есть санузел

Мусоропровод: не указано

Состояние квартиры: первичная отделка

Тип дома: кирпичный

Год постройки: 2018

Территория: огороженная

Парковка: не указано

Статус сделки: продажа

Сделка: прямая продажа

Собственность: не указано

Основание права собственности: не указано

Описание

ID 14579 Предлагается квартира общей площадью 110 кв.м на Гагаринском переулке. Спланировано: две спальни, гостиная, кухня, большой санузел и гардеробная. Установлен действующий камин. Большое количество окон и высокие потолки делают квартиру очень светлой и комфортной. Окна выходят на Гагаринский переулок и тихий двор.

Квартира на карте

ПанорамыКарта

Похожие объявления

Этаж: 4  Площадь: 110 м2

105 000 000 Р

Этаж: 4  Площадь: 110 м2

93 459 350 Р

Этаж: 4  Площадь: 110 м2

93 459 350 Р
Спецпредложения
Добавить объявление