Не упусти свой шанс! Последние акции от застройщиков  ▼

Продается 3-комнатная квартира, Марьиной Рощи 4-я ул., 10

36 000 000 Р

Марьиной Рощи 4-я ул.10

Дата публикации: 7 апреля 2026

Дата обновления: 7 апреля 2026

Телефон: 
Показать телефон

+7 (499) 372-92-13

Агентство:  МИЭЛЬ

Этаж: 39 / 55

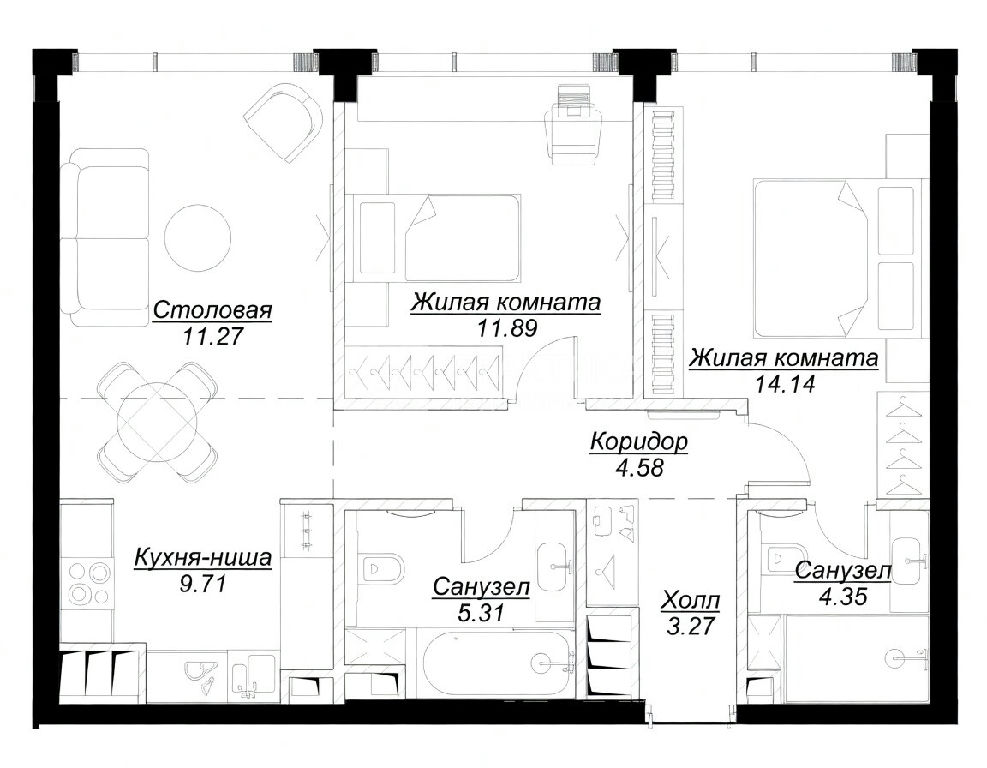
Общая: 65,8 м2

Жилая: 37,3 м2

Кухня: 9,7 м2

Комнаты: не указано

Балкон/лоджия: не указано

Лифт: есть лифт

Окна: окна на улицу

Санузел: совмещенный

Мусоропровод: не указано

Состояние квартиры: требуется ремонт

Тип дома: монолитный

Год постройки: 2024

Территория: не указано

Парковка: не указано

Статус сделки: продажа

Сделка: прямая продажа

Собственность: не указано

Основание права собственности: не указано

Описание

Код объекта: 2113494.Продается современная квартира с панорамными видами на запад Москвы в высотном ЖК бизнес-класса О квартире: Функциональная линейная планировка, площадь 65,8 кв.м. Из окон открываются впечатляющие панорамные виды на западную часть Москвы. Благодаря высокому этажу в квартире много света и ощущение простора. Выполнена предчистовая отделка вайт-бокс от застройщика: выполнена стяжка пола со звукоизоляцией, возведены межкомнатные перегородки, разведены электрика и водоснабжение, установлены и подключены два блока кондиционеров. В подарок покупателю предоставляем полностью готовый дизайн-проект со всей необходимой документацией, что позволяет сразу приступить к ремонту. Без мебели. О доме: Жилой комплекс современный 55-этажный дом бизнес-класса в районе Марьина Роща. Здание отличается выразительной архитектурой с панорамным остеклением и высокими стандартами качества строительства. В доме предусмотрены просторные лобби, современные инженерные системы, скоростные лифты и круглосуточная система безопасности с видеонаблюдением и контролем доступа. Для жителей доступен подземный паркинг и благоустроенная территория с зонами отдыха по принципу "двор без машин". Локация и транспортная доступность: Район отличается удобными транспортными развязками: выезд на ТТК обеспечивает быстрый и комфортный доступ в центр Москвы и другие районы города. В 10-15 минутах пешком расположены станции метро "Марьина Роща" и "Савеловская". Инфраструктура и окружение: Район обладает развитой инфраструктурой: в шаговой доступности расположены школы, детские сады, клиники, ТЦ "Райкин Плаза" магазины и объекты бытового сервиса. Все необходимое для комфортной жизни находится рядом с домом. Благоустроенные тихие дворы и наличие парковых зон делают район комфортным для проживания. Условия сделки: Квартира принадлежит одному взрослому собственнику. Полностью готова к сделке. Без обременений. Ключи в день покупки. Преимущества МИЭЛЬ: Покупателю выдается правовой сертификат, гарантирующий юридическую чистоту объекта. Возможна ипотека с особыми условиями для клиентов МИЭЛЬ от банков-партнеров, работаем с любыми источниками финансирования (материнский капитал, военный сертификат и т.д.) Бонусы по партнерским программам МИЭЛЬ на товары и услуги от известных брендов.

Квартира на карте

ПанорамыКарта

Похожие объявления

Этаж: 30  Площадь: 89,5 м2

51 000 000 Р

Этаж: 43  Площадь: 103,5 м2

76 000 000 Р
Спецпредложения
Добавить объявление