Красные ворота (8 мин. пешком)
Курская м. (10 мин. пешком)
Курская м. (11 мин. пешком)
Казанский вокзал (11 мин. пешком)
Дата публикации: 10 декабря 2025
Дата обновления: 25 декабря 2025
+7 (499) 372-92-13
24 300 000 Р
Красные ворота (8 мин. пешком)
Курская м. (10 мин. пешком)
Курская м. (11 мин. пешком)
Казанский вокзал (11 мин. пешком)
Дата публикации: 10 декабря 2025
Дата обновления: 25 декабря 2025
+7 (499) 372-92-13
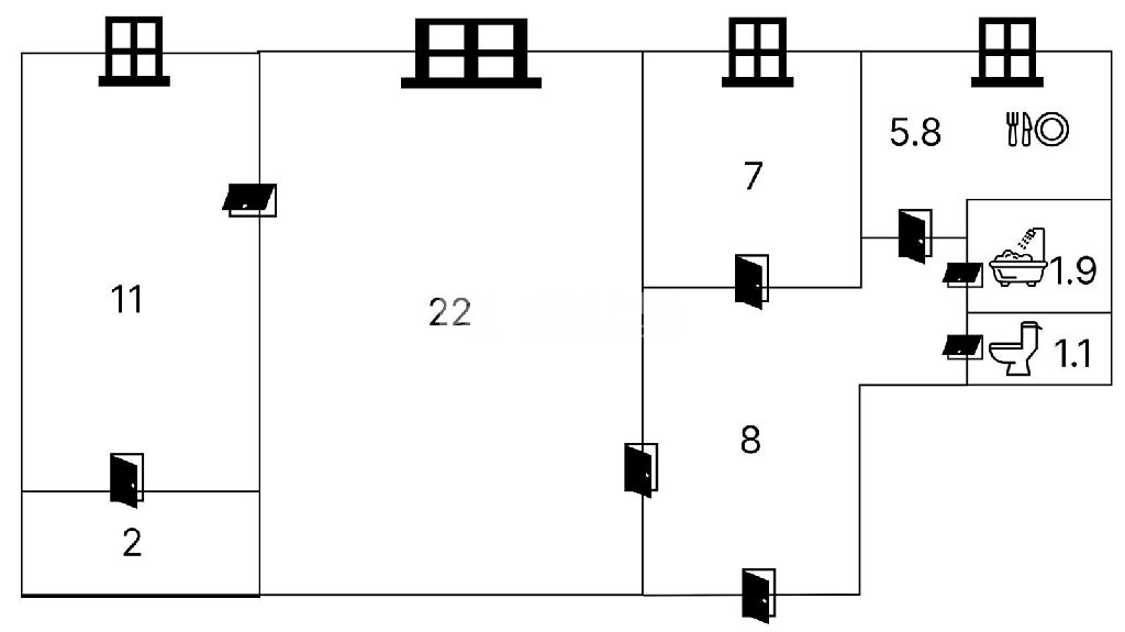
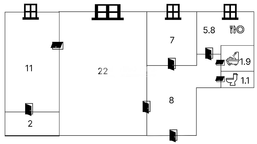
Этаж: 1 / 9
Общая: 56,2 м2
Жилая: 40 м2
Кухня: 6 м2
Комнаты: не указано
Балкон/лоджия: не указано
Лифт: есть лифт
Окна: окна на улицу
Санузел: раздельный
Мусоропровод: не указано
Состояние квартиры: хорошее состояние
Тип дома: кирпичный
Год постройки: 1969
Территория: огороженная
Парковка: не указано
Статус сделки: продажа
Сделка: прямая продажа
Собственность: не указано
Основание права собственности: не указано
Код объекта: 1963940.Продается уютная, просторная трехкомнатная квартира в 8 минутах пешком от станции метро "Красные ворота "!Квартира расположена на высоком первом этаже, но над цокольным этажом, поэтому фактически квартира находится на высоте второго этажа, что можно увидеть на представленных фотографиях. Цокольный этаж служит естественным теплоизолятором, снижая теплопотери первого этажа и уменьшая затраты на отопление. Также расположение данной квартиры исключает трудности с перевозом крупных вещей. Квартира не угловая, все окна выходят на одну сторону, на улицу.Дом серии II-29 относят к прогрессивным архитектурным решениям своего времени. Хорошие теплоизоляционные качества кирпича дополнились появлением лифта и мусоропровода. Несущая система здания три продольные стены с опирающимися на них плитами перекрытий пролетом 6 метров. Внутри квартиры несущие стены отсутствуют, что дает возможность подобрать индивидуальный вариант планировки. Строительные конструкции: Перекрытия многопустотные железобетонные плиты толщиной 220мм. Перегородки гипсобетонные панели толщиной 80мм. и 160мм. Внутренние несущие и наружные стены дома кирпичные толщиной 510мм, благодаря чему достигается хорошая звуко- и теплоизоляция, а также комфортная температура в помещениях в любое время года без использования кондиционера.Дом включен в план капремонтов, при которых производится замена лифтов и инженерных коммуникаций. Кроме того, предусматривается монтаж остекления балконов и замена окон на энергосберегающие.Дом находится на садовом кольце в историческом центре столицы с развитой инфраструктурой, есть все для комфортного проживания и отдыха: школы, детские сады, досуговые учреждения для детей и взрослых, магазины, торговые центры, банки, поликлиники, культурные объекты, благоустроенные парки. Прекрасная транспортная доступность обеспечит легкий доступ к любым точкам города. Для автомобилистов имеется наземная парковка, въезд под шлагбаум. Эта квартира идеально подойдёт тем, кто ценит комфорт, безопасность и престижное расположение.Один взрослый собственник, квартира находится в собственности одной семьи с 1995г., снятие с регистрации до сделки. Без долгов и обременений, полная сумма в договоре. Свободная продажа.Работать с МИЭЛЬ выгодно и надёжно: - обеспечение комфортной и безопасной сделки, юридическое сопровождение - содействие в получении специальных условий и преференций по ипотеке.Уважаемые покупатели, звоните в удобное для Вас время!