Не упусти свой шанс! Последние акции от застройщиков  ▼

Продается 3-комнатная квартира, Снежная ул., вл22к3

57 086 848 Р

Снежная ул.вл22к3

Дата публикации: 18 февраля 2026

Дата обновления: 8 апреля 2026

Телефон: 
Показать телефон

+7 (495) 023-75-11

Агентство:  Джойнио

Этаж: 13 / 17

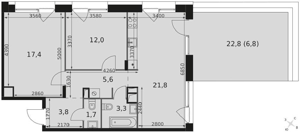
Общая: 72,8 м2

Жилая: 29,4 м2

Кухня: не указано

Комнаты: не указано

Балкон/лоджия: не указано

Лифт: лифт пассажирский

Окна: окна на улицу

Санузел: не указано

Мусоропровод: нет

Состояние квартиры: без отделки

Тип дома: монолитный

Год постройки: не указано

Территория: огороженная

Парковка: охраняемая

Статус сделки: продажа

Сделка: прямая продажа

Собственность: не указано

Основание права собственности: не указано

Описание

Продается 3-комн. квартира, площадью 72.8 кв.м.
Жилая площадь 29.4 м2, ремонта нет, окна выходят на улицу.
Квартира располагается на 13 этаже 17-этажного монолитного дома.
Дом оборудован пассажирским лифтом, есть мусоропровод, закрытая территория, парковка с охраной. Контактное лицо: Отдел продаж [#8069888#]

Квартира на карте

ПанорамыКарта

Похожие объявления

Этаж: 5  Площадь: 84,3 м2

51 652 296 Р

Этаж: 10  Площадь: 84,3 м2

53 414 335 Р

Этаж: 15  Площадь: 66,2 м2

39 783 552 Р

Этаж: 2  Площадь: 54,6 м2

23 400 000 Р

Этаж: 6  Площадь: 68,4 м2

40 990 000 Р

Этаж: 5  Площадь: 55,7 м2

25 450 000 Р
Спецпредложения
Добавить объявление