Не упусти свой шанс! Последние акции от застройщиков  ▼

Продается 2-комнатная квартира, Ленинский просп., 93К4

19 500 000 Р

Ленинский просп.93К4

Дата публикации: 13 сентября 2025

Дата обновления: 1 марта 2026

Телефон: 
Показать телефон

+7 (967) 263-35-76

Агентство:  Владис на Павелецкой

Этаж: 9 / 9

Общая: 43,7 м2

Жилая: 35,7 м2

Кухня: 4 м2

Комнаты: не указано

Балкон/лоджия: балкон

Лифт: есть лифт

Окна: окна во двор и на улицу

Санузел: совмещенный

Мусоропровод: не указано

Состояние квартиры: хорошее состояние

Тип дома: кирпичный

Год постройки: 1967

Территория: не указано

Парковка: не указано

Статус сделки: продажа

Сделка: прямая продажа

Собственность: не указано

Основание права собственности: не указано

Описание

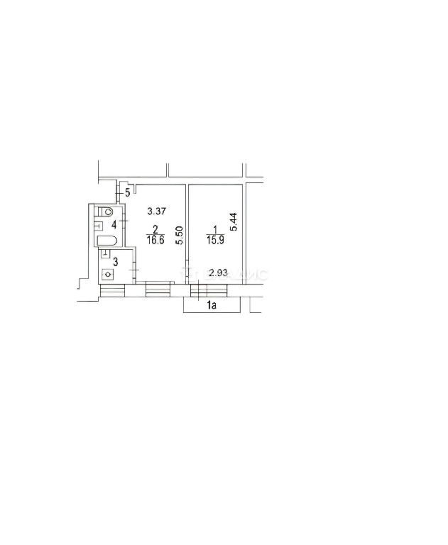
Код объекта: 1778271.Продается двухкомнатная квартира в кирпичном доме по адресу: Ленинский проспект, д. 93к4, 9 этаж-последний. Общая площадь 43,7 кв.м, узаконенная перепланировка. Спальня 15,9 кв.м, гостиная 16,6 кв.м. Никто не прописан, 1 взрослый собственник, готова к заселению. В квартире выполнен косметический ремонт, совмещенный санузел с большой ванной. Дом расположен на второй линии проспекта, что обеспечивает тишину и хорошую транспортную доступность, до метро Новаторская 5 минут пешком. Живописный Воронцовский парк расположен в 10 минутах от дома, там всегда можно укрыться от знойной жары летом и весело провести время зимой. Образовательные (детские сады, школы) и медицинские учреждения так же находятся в шаговой доступности. Квартира всегда находилась в собственности одной семьи и мы ищем для нее самых лучших хозяев! Готовы к быстрому выходу на сделку и обсуждению нюансов!

Квартира на карте

ПанорамыКарта

Похожие объявления

Этаж: 3  Площадь: 58 м2

29 400 000 Р

Этаж: 3  Площадь: 58 м2

29 400 000 Р

Этаж: 3  Площадь: 58 м2

29 400 000 Р

Этаж: 3  Площадь: 58 м2

29 400 000 Р

Этаж: 6  Площадь: 62 м2

25 000 000 Р
Спецпредложения
Добавить объявление