Не упусти свой шанс! Последние акции от застройщиков  ▼

Продается 2-комнатная квартира, Теплый Стан ул., 11К1

16 800 000 Р

Теплый Стан ул.11К1

Дата публикации: 11 марта 2026

Дата обновления: 12 марта 2026

Телефон: 
Показать телефон

+7 (499) 372-92-13

Агентство:  МИЭЛЬ

Этаж: 14 / 16

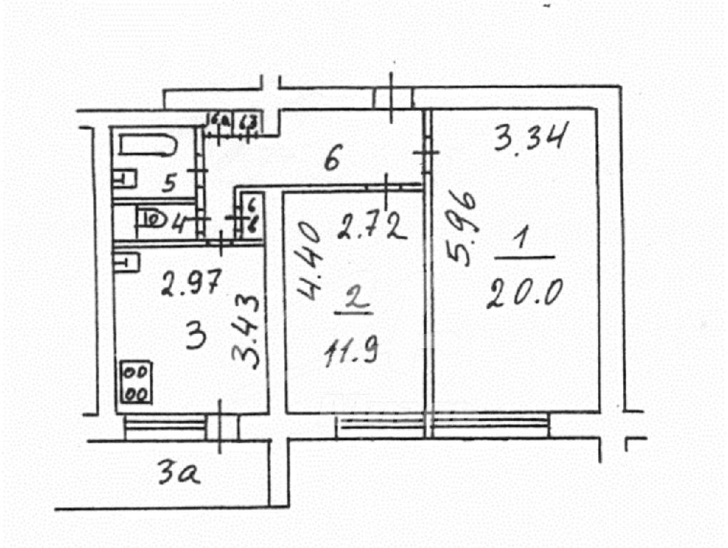
Общая: 52 м2

Жилая: 31,9 м2

Кухня: 10,2 м2

Комнаты: 20 11.9 м2

Балкон/лоджия: лоджия

Лифт: есть лифт

Окна: окна во двор

Санузел: раздельный

Мусоропровод: не указано

Состояние квартиры: хорошее состояние

Тип дома: панельный

Год постройки: 1974

Территория: не указано

Парковка: не указано

Статус сделки: продажа

Сделка: прямая продажа

Собственность: не указано

Основание права собственности: не указано

Описание

Арт. 132605894
Продается светлая, уютная, теплая 2-х комнатная квартира 52.1кв.м с застекленной лоджией 2.0 кв. м на 14-ом этаже. Квартира с линейной планировкой (все окна во двор): большая гостиная 20 кв. м, спальня 11.9 кв. м с изолированным входом, большая прихожая 6.3, просторная кухня 10.2 кв. м, раздельный санузел, солнечная лоджия. Три встроенных шкафа. В квартире выполнен косметический ремонт. Квартира без перепланировок. Спокойные соседи на этаже.

До метро: Тёплый стан 10 минут пешком, Генерала Тюленева 6 минут пешком,

Тропарево 8 минут (несколько остановок на автобусе).

В районе развитая инфраструктура: магазины, торговые центры, поликлиники, аптеки, банки, детские сады и школы в шаговой доступности, кроме того, бассейн, спортивный комплекс "Самбо", ярмарка, каток. Рядом зеленый сквер для отдыха, двор с множеством парковочных мест.

Район очень зелёный, через дорогу Ландшафтный заказник Тёплый Стан, на территории которого: дорожки для гуляния или бега, пруд, лодочная станция и пляж, множество детских и спортивных площадок, всё предусмотрено для отдыха и занятия спортом.

Полная стоимость в договоре, быстрый выход на сделку, 1 взрослый собственник, свободная продажа, квартира без обременений. В собственности по наследству более 5-х лет.

Квартира на карте

ПанорамыКарта

Похожие объявления

Этаж: 10  Площадь: 55,3 м2

15 100 000 Р
Спецпредложения
Добавить объявление