Не упусти свой шанс! Последние акции от застройщиков  ▼

Продается 2-комнатная квартира, Фрунзенская наб., 54

64 900 000 Р

Фрунзенская наб.54

Дата публикации: 9 декабря 2025

Дата обновления: 16 апреля 2026

Телефон: 
Показать телефон

+7 (903) 361-72-92

Агентство:  ВСЁ ПРОСТО

Этаж: 6 / 7

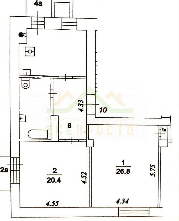
Общая: 76,9 м2

Жилая: 54 м2

Кухня: 13 м2

Комнаты: 20.4 26.8 м2

Балкон/лоджия: два балкона

Лифт: есть лифт

Окна: окна во двор и на улицу

Санузел: совмещенный

Мусоропровод: не указано

Состояние квартиры: дизайнерский ремонт

Тип дома: кирпичный

Год постройки: 1939

Территория: огороженная

Парковка: есть

Статус сделки: продажа

Сделка: прямая продажа

Собственность: не указано

Основание права собственности: не указано

Описание

Арт. 126360130
ИДЕАЛЬНАЯ КВАРТИРА ДЛЯ ДРУЖНОЙ СЕМЬИ !!
Продается уютная квартира на первой линии Фрунзенской набережной с двумя просторными спальнями 20,4 и 26,8 кв. м. и с двумя балконами. Площадь кухни 13 кв.м. Кухня оснащена современной техникой Miele и Liebherr.
Санузел просторный площадью 10 кв.м., с душевой кабиной и большой ванной.
Высокие потолки 3,2 м увеличивают пространство квартиры и создают ощушение легкости и комфорта.
В квартире выполнен качественный дизайнерский ремонт из премиальных материалов.
В комнатах, прихожей и столовой зоне уложен дубовый паркет, в санузле и кухонной зоне - керамогранит под паркетную доску. Полы в санузле и в рабочей кухонной зоне с приятным подогревом.
Двухниточное остекление окон, с установкой двух независимых оконных блоков в один проем для максимальной тепло и звукоизоляции, превосходящие возможности обычных многокамерных окон.
Многофункциональная приточная система, обеспечивает постоянный приток отфильтрованного свежего воздуха, значительно улучшая качество микроклимата в квартире.
С балконов открываются живописные виды на Москву - реку и Нескучный сад, с одной стороны, на тишину уютного московского дворика - с другой. Двор закрытый, оборудован шлагбаумом. Во дворе дома расположен тихий и спокойный сквер с детскими площадками.
Дополнительными преимуществами являются шаговая доступность до набережной Москвы-реки для неспешных прогулок на свежем воздухе, 15-ти минутная доступность до основных объектов инфраструктуры: станций метро Фрунзенская и Спортивная, современной школы, детского сада, академии хореографии, медклиники, фитнес центра, объектов ритейла различного назначения.
Квартира в собственности более 10 лет, без обременений, 2 взрослых собственника. Быстрый выход на сделку.

Квартира на карте

ПанорамыКарта

Похожие объявления

Этаж: 9  Площадь: 58,2 м2

188 130 000 Р

Этаж: 8  Площадь: 89,3 м2

247 690 000 Р
Спецпредложения
Добавить объявление