Не упусти свой шанс! Последние акции от застройщиков  ▼

Продается 2-комнатная квартира, Корнейчука ул., 32

14 900 000 Р

Корнейчука ул.32

Дата публикации: 26 марта 2026

Дата обновления: 5 апреля 2026

Телефон: 
Показать телефон

+7 (499) 372-92-13

Агентство:  МИЭЛЬ

Этаж: 4 / 12

Общая: 52,6 м2

Жилая: 30,4 м2

Кухня: 8 м2

Комнаты: не указано

Балкон/лоджия: балкон

Лифт: есть лифт

Окна: окна во двор

Санузел: раздельный

Мусоропровод: не указано

Состояние квартиры: хорошее состояние

Тип дома: панельный

Год постройки: 1977

Территория: не указано

Парковка: не указано

Статус сделки: продажа

Сделка: альтернатива

Собственность: не указано

Основание права собственности: не указано

Описание

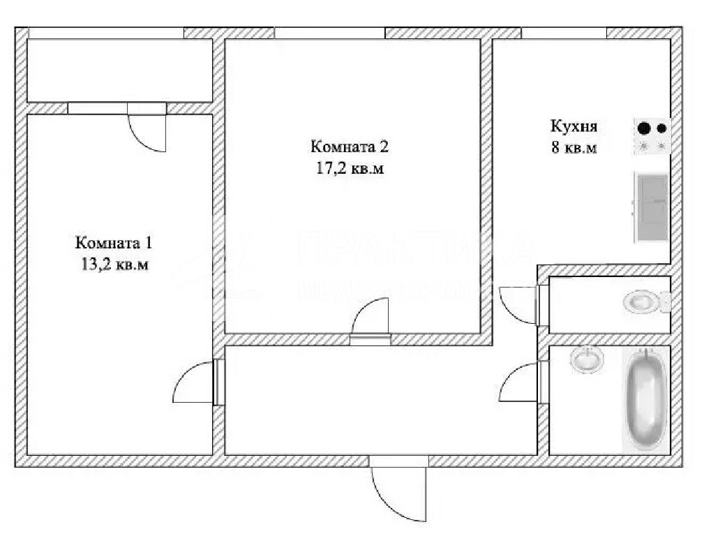
Код объекта: 2093329.Уникальное предложение на рынке недвижимости Москвы! Продаётся двухкомнатная квартира в районе с развитой инфраструктурой. Отличный район для уютной жизни! Квартира расположена по адресу: улица Корнейчука, 32. Общая площадь составляет 52,6 кв. м, из которых 30,4 кв. м жилая площадь. Две комнаты изолированы, их площадь 17,2 кв. м и 13,2 кв. м. Площадь кухни 8 кв. м. В квартире есть балкон, окна выходят во двор. Санузел раздельный. Есть возможность улучшить пространство. Кухонная мебель остается. В квартире сделан косметический ремонт, можно заехать и жить. Дом построен в 1977 году, панельный, с железобетонными перекрытиями. Квартира находится на 4 этаже 12-этажного дома. Летом 2025 года произведен капремонт дома, что создает отличные условия для жизни! Наземная парковка во дворе обеспечит удобное место для вашего автомобиля. Транспортная доступность. В 50 метрах остановка общественного транспорта. В двух минутах находится МКАД, удобный выезд. Инфраструктура рядом. Во дворе находится детский сад, рядом с домом расположена поликлиника, в шаговой доступности бассейн, фитнес-клуб, торговые центры, сетевые магазины, аптеки, пункты выдачи заказов. В шаговой доступности украшение СВАО - Алтуфьевский лесопарк. Условия продажи. Альтернативная продажа. 2 взрослых собственника. Обременения отсутствуют. Полная стоимость в договоре. Преимущества. При покупке в ипотеку преференции для наших клиентов от банков-партнеров. При покупке квартиры полис титульного страхования от компании ВСК в подарок. Также выдается Правовой сертификат компании МИЭЛЬ.Это отличное предложение для тех, кто ищет комфортное жильё в районе с развитой инфраструктурой. Не упустите свой шанс стать владельцем этой уютной квартиры! Позвоните нам прямо сейчас, чтобы узнать больше и записаться на просмотр. Мы гарантируем безопасную сделку и юридическую поддержку нашим Клиентам. Поможем одобрить ипотеку со сниженной ставкой.

Квартира на карте

ПанорамыКарта

Похожие объявления

Этаж: 4  Площадь: 45,6 м2

12 200 000 Р

Этаж: 7  Площадь: 49 м2

16 300 000 Р
Спецпредложения
Добавить объявление