Алма-Атинская (5 мин. пешком)
Борисово м. (15 мин. пешком)
Шипиловская м. (10 мин. транспортом)
Красногвардейская м. (10 мин. транспортом)
Дата публикации: 17 июля 2025
Дата обновления: 2 февраля 2026
+7 (977) 452-25-85
+7 (915) 392-79-04
34 990 000 Р
109 344 за м.кв.
Алма-Атинская (5 мин. пешком)
Борисово м. (15 мин. пешком)
Шипиловская м. (10 мин. транспортом)
Красногвардейская м. (10 мин. транспортом)
Дата публикации: 17 июля 2025
Дата обновления: 2 февраля 2026
+7 (977) 452-25-85
+7 (915) 392-79-04
Класс: не указано
Площадь min: 320 м2
Площадь max: 320 м2
Этаж: 1
Охрана: не указано
Парковка: есть
Территория: не указано
Статус сделки: продажа
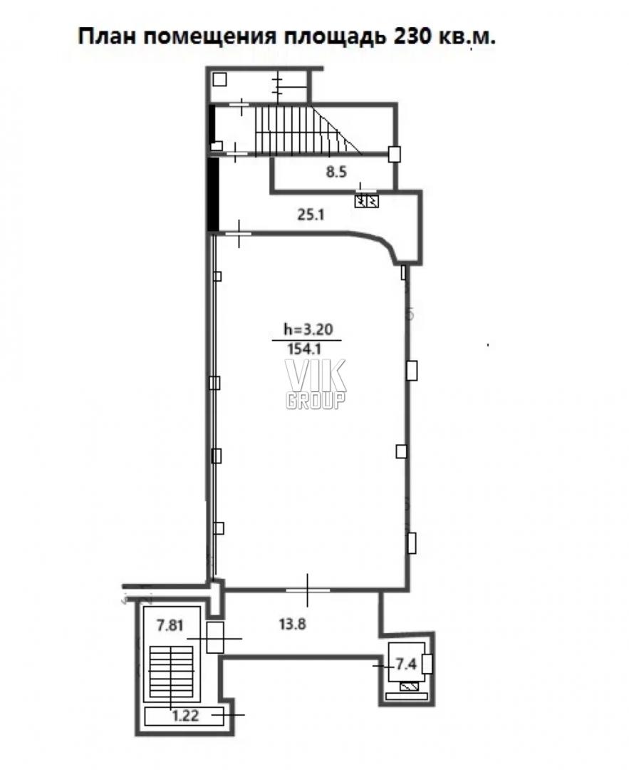
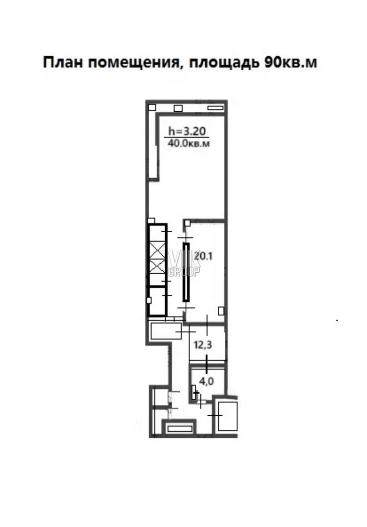
Продается два нежилых помещения свободного назначения в г Москве район Братеево по ул Ключевая дом 22 корпус 2. Помещения расположены на цокольном этаже отдельно стоящего двухэтажного панельного дома, построенного в 1998г. Общая площадь всех помещений 320кв.м. Возможно купить по отдельности. Помещение, площадь 230кв.м, с интересной и функциональной планировкой (на данный момент используется под ресторан, банкетный зал на 120 посадочных мест): два отдельных благоустроенных входа с зоной разгрузки; пологие лестницы; холл 15кв.м с гардеробной; зал 155кв.м с двумя входами на кухню; в кухонной зоне 26кв.м установлена электроплита мощностью 380 кВт, большой мангал с вытяжкой, помещения для хранения продуктов; гостевой санузел и отдельный для персонала, два подсобных помещения от 7 до 8кв.м. Выполнен качественный ремонт в классическом стиле: входная группа отделана декоративным камнем и на стенах декоративная штукатурка с художественной росписью; пол выложен кафелем с мозаичным орнаментом; двойные фигурные потолки с точечными светильниками, цветной фоновой подсветкой, красивыми люстрами; на стенах в зале прекрасные живописные картины ручной работы; современные столы со стульями в изысканном убранстве; грамотно обустроен DJ подиум; просторная барная стойка; металлическая входная дверь. Кадастровый № 77:05:0012006:6145. Помещение, площадь 90кв.м (на данный момент используется под караоке-бар на 40 посадочных мест): с выделенными зонами для отдыха 40 и 20кв.м; кабинет 12кв.м; холл 12кв.м с обустроенным DJ местом. Кадастровый № 77:05:0012006:6146. Высота потолков 3,2м. Все коммуникации- центральные, разрешённая электрическая мощность 150кВт, установлена приточно-вытяжная вентиляция. Продается готовый арендный бизнес с высокой доходностью, окупаемость менее 5 лет. Помещения возможно использовать под любой вид деятельности: офис, мастерскую, студию красоты, торговую точку, фитнес зал, квест-шоу, лазертаг. Отличное местоположение: много парковочных мест, густонаселенный жилой район, высокий пешеходный и автомобильный трафик. Развита инфраструктура района. Хорошее транспортное сообщение, 250 метров от метро Алма-Атинская. Полная стоимость в ДКП. Свободная продажа.