Не упусти свой шанс! Последние акции от застройщиков  ▼

Продается готовый бизнес

18 300 000 Р

86 361 за м.кв.

Воскресенское пос. (Коммунарка р-н)

Дата публикации: 21 ноября 2024

Дата обновления: 29 сентября 2025

Телефон: 
Показать телефон

+7 (909) 906-62-02

Агентство:  АН Владис

Класс: не указано

Площадь min: 211,9 м2

Площадь max: 212 м2

Этаж: 1

Охрана: не указано

Парковка: есть

Территория: не указано

Статус сделки: продажа

Описание

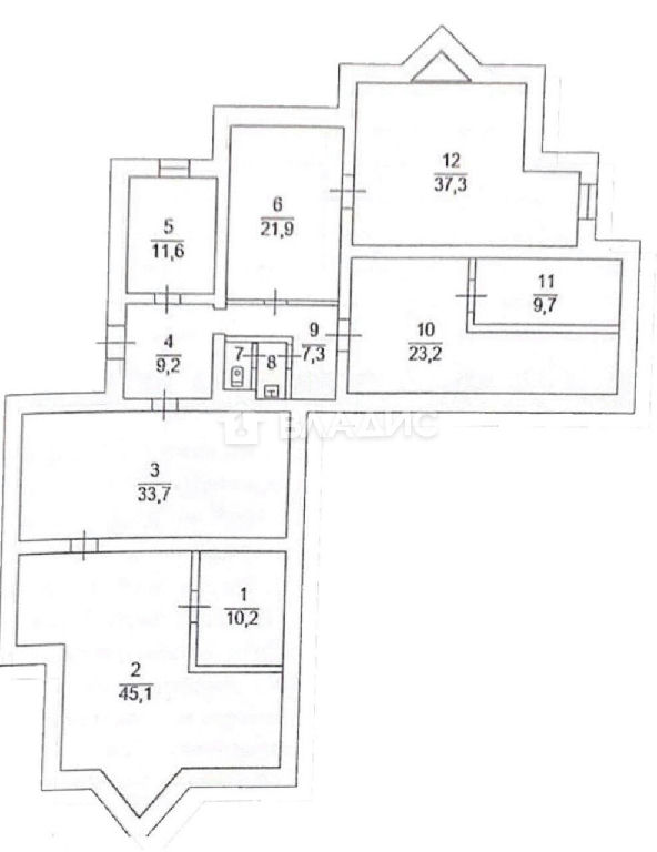
Код объекта: 1314611. ЭКСКЛЮЗИВНОЕ ПРЕДЛОЖЕНИЕ! Продаётся коммерческое помещение с арендаторами, МАП 202 тр, СРОК ОКУПАЕМОСТИ 7 лет!ОБ ОБЪЕКТЕ:*электричество 40 кВт,*высокий пешеходный трафик: 327 человека в час,*высокая плотность населения: 1484 домохозяйства в 5 минутах пешком,*арендаторы: кафе, сеть кафе в Москве (длительный нотариальный договор), пиво, сеть торговых точек от завода "Косоухофф", офис (с предоставлением юридического адреса), салон маникюра (два места).*высота потолков 3,2 метра,*коммунальные платежи платят арендаторы,Дополнительные ПРЕИМУЩЕСТВА:*дизайнерский ремонт,*рядом расположена парковка,*в 250 метрах расположена живописная набережная с фонтаном, детским игровым комплексом, со сценической площадкой,*в 250 метрах остановка общественного транспорта, что обеспечит дополнительный поток людей,* МАП 202 тр,* срок окупаемости 7 лет (с учетом двух повышений арендной платы в течении 3х лет).Условия СДЕЛКИ:*1 собственник физ. лицо,*ипотека подходит,*БЕЗ ОБРЕМЕНЕНИЯ.Не упустите свой шанс приобрести коммерческую недвижимость с готовым арендным потоком 202 тр в месяц (пассивный доход) с 7 ми летним сроком окупаемости по самой выгодной цене! Мы гарантируем безопасную сделку и юридическую поддержку нашим Клиентам. Поможем одобрить ипотеку со сниженной ставкой.Свяжитесь с нами прямо сейчас, чтобы узнать больше о нашем предложении.

Готовый бизнес на карте

ПанорамыКарта
Спецпредложения
Добавить объявление