Не упусти свой шанс! Последние акции от застройщиков  ▼

Продается коттедж в СНТ Дружба

15 888 000 Р

Дружба СНТ (Воскресенское поселение)

Дата публикации: 31 июля 2025

Дата обновления: 16 октября 2025

Телефон: 
Показать телефон

+7 (499) 638-29-74

+7 (964) 724-18-79

Агентство:  АН ФРИДОМ

Площадь дома: 200 м2

Площадь участка: 8 сот.

ПМЖ: не указано

Электричество: есть

Газ: есть

Отопление: есть

Водопровод: есть

Канализация: есть

Охрана: нет

Статус сделки: продажа

Описание

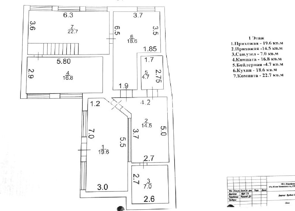
Реальному покупателю скидка 5% .Москва, поселение Первомайское, снт "Дружба" . Киевское шоссе, 19 км от МКАД. 15 минут до метро Рассказовка, Саларьево. Продается дом для круглогодичного проживания 200 кв.м. на обустроенном участке 8 соток. Дом 2 этажа со всеми удобствами оборудован всей необходимой мебелью и техникой. 1 этаж: прихожая, холл, с/у с душевой кабиной, кухня-столовая, гостиная, спальня. 2 этаж: холл с выходом на лоджию, 2 спальни+ детская. Баня на дровах, 2 гаража с подвалом. Подключены все необходимые коммуникации. Участок с многолетними елями и молодыми фруктовыми деревьями. Есть летний гостевой дом 30 кв.м. с встроенной кухней. Обжитой поселок, въезд через КПП. Большинство соседей проживают постоянно. Тихое, спокойное место в окружении лесного массива, в пешей доступности находится водоём для отличной рыбалки и отдыха. Отличная транспортная доступность: быстрый выезд на Киевское шоссе, автобусы и маршрутки до метро.

Коттедж на карте

ПанорамыКарта
Спецпредложения
Добавить объявление