Не упусти свой шанс! Последние акции от застройщиков  ▼

Продается дом в СНТ Акатовское Поле

22 300 000 Р

Акатовское Поле СНТ (Московский поселение)

Дата публикации: 15 сентября 2025

Дата обновления: 30 апреля 2026

Телефон: 
Показать телефон

+7 (926) 721-17-97

Агентство:  ГОРОБМЕН

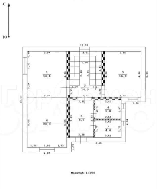
Площадь дома: 149 м2

Площадь участка: 3 сот.

ПМЖ: есть

Электричество: есть

Газ: не указано

Отопление: есть

Водопровод: есть

Канализация: есть

Охрана: не указано

Статус сделки: продажа

Описание

Собственный дом по цене ниже трехкомнатной квартиры!!
Вашему вниманию предлагается современный, монолитно-кирпичный, двухэтажный дом в стиле Хай-Тэк, в 400 метрах от торгового городка брендовых бутиков-Vnukovo Outlet Village г.Москвы.
Дом расположен на участке 3 сотки (статус ИЖС), обнесенный современным забором на ленточном фундаменте с отъездными воротами. Дом зарегистрирован и привязан к участку, стоит на ленточном фундаменте 1.5 метра глубины.
Характеристики дома:
-Общая площадь 148.5 кв.м. (по факту 160), первый этаж: холл, бойлерная, санузел, кухня совмещенная с гостиной (38.4 кв.м.) и вторым светом с высотой потолка 6 метров, спальня, лестничное пространство. Второй этаж: холл , 2 изолированные спальни, гардеробная и санузел.
Конструктив дома: материалы стен-газоблок (внешний фасад- кирпич), межэтажные перекрытия-монолит, лестница-монолитная, большие панорамные окна, дом для круглогодичного проживания. Внутри дома выполнена частичная отделка (отштукатурены стены, разведена электрика, проведено водоотведение в санузлах и на кухне, на первом этаже- водяные теплые полы) Внешняя облицовка дома кирпич, штукатурка.
Коммуникации: электричество-15 кВт, колодец, септик. Отопление электрическое ( есть возможность подключение газа)
Инфраструктура: В пешей доступности от дома, магазины, Внуково аутлет, комплекс бань и бассейнов-ТермоЛэнд, частный детский сад, вся инфраструктура г. Московский.
Отличная транспортная доступность: выезд на Киевское шоссе, до метро 10 минут на автомобиле, 10 мин до аэропорта Внуково, ТРЦ Саларис.
Один взрослый собственник, полная сумма в договоре, без обременений, Московская прописка.

Дом на карте

ПанорамыКарта
Спецпредложения
Добавить объявление